HELAAS ZIJN ALLE BEZICHTIGINGSMOMENTEN VOL
Wat een heerlijke hoekwoning aan de geliefde Van Bemmelstraat: veel ruimte en als extra plus een fijn bijgebouw!
De Van Bemmelstraat is een gewild straatje, gelegen in het Leusderkwartier in Amersfoort. De woning is op loopafstand van de Leusderweg, de gezelligste winkelstraat van Amersfoort. Hier bevinden zich een lekkere bakker, slager, supermarkt en de vele specialiteitenwinkels. Het Nimmerdor bos is je achtertuin. Met de fiets ben je binnen no-time op het station of in de binnenstad. Dit is met recht een toplokatie te noemen!
Op nummer 41 vind je dit ruime huis, uitgebouwd en opgebouwd onder architectuur met maar liefst 4 slaapkamers. De sfeer van weleer vind je terug in het huis maar het comfort niveau is hedendaags. Zo is de moderne keuken van alle gemakken voorzien, ligt er vloerverwarming en is de badkamer prachtig verbouwd.
De diepe tuin op het zuiden heeft heerlijke beschutte plekjes zoals een BBQ-terras en zelfs een dompelbad. Door de prachtige beplanting staat de tuin van voor- tot najaar in bloei. Tja en dan hebben we het bijgebouw nog niet genoemd. Deze is op verschillende manieren in te zetten. Een dikke plus bij deze woning.
We nemen je graag even mee!
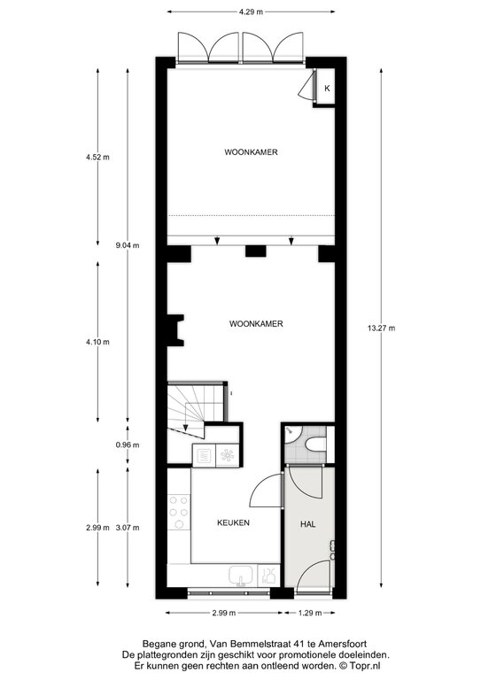
Via de entree kom je in de hal met toilet en toegang tot de keuken. De keuken is aan de voorzijde van de woning. De moderne keuken is van alle gemakken voorzien zoals vaatwasser, combioven en pit cooking. De grote ramen en hoge plafonds geven fijn veel licht en een ruimtelijk gevoel. De keuken is op een slimme en speelse manier afgeschermd waardoor je in de woonkamer een beschut gevoel krijgt. De sfeervolle woonkamer heeft een heerlijke houtkachel. Doordat de uitbouw met lichtstraat wat lager is gelegen, is een heerlijke aparte eethoek gecreëerd. De dubbele openslaande deuren naar de tuin maken het af: mede door het goed gebruik van de tegels loopt het huis over in de tuin.
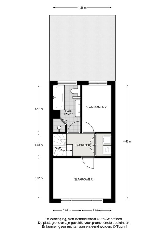
Eerste verdieping
In de woonkamer is een prachtige houten trap gemaakt naar de eerste etage. Met glas is de trap afgeschermd zodat het ruimtelijke effect blijft, maar de warmte niet verdwijnt. Op de eerste verdieping is een prachtige badkamer gemaakt in neutrale kleurstelling. Een inloopdouche, dubbele wastafel, ligbad en toilet maken de badkamer compleet. Daarnaast vind je hier twee slaapkamers, 1 grote aan de voorzijde over de gehele breedte van de woning (13 m2) en een kleinere aan de achterzijde van de woning (8 m2). Inpandig is een mooie ruime laundry gemaakt met wasmachine/droger aansluiting.
Tweede verdieping
Op de tweede verdieping zijn twee ruime slaapkamers gemaakt. Aan de achterzijde meet de kamer ca 12 m2. Aan de voorzijde is de kamer ca 9 m2 groot.
Tuin
En dan de tuin. Wat een ruimte, maar liefst 50 meter diep. Sfeervolle zitjes zijn hier gecreëerd. Je kunt hier beschut zitten of juist lekker in de zon. Een liefhebber haalt hier zijn hart op: in de tuin staan diverse fruitbomen: 1 appelboom, 2 perenbomen, 2 kersenbomen, 2 pruimenbomen, druiven. Van voorjaar t/m najaar staat de tuin in bloei: er staat een grote hortensia, diverse (bloeiende) klimplanten (clematis, hedera, akebia, passiebloem) en veel klaprozen
Achterin de tuin is een heerlijk tuinhuis gemaakt met keuken, toilet en douche. Je kunt deze inzetten als gastenverblijf, als studio of atelier of wellicht als kantoor aan huis. Veel mogelijkheden.
Wat maakt Van Bemmelstraat 41 je nieuwe thuis?
– Geweldige ligging vlakbij Leusderweg in gezellige straat
– Ruim en comfortabel familiehuis
– Onder achitectuur uitgebouwd en vergroot
– Energiezuinig door isolatie, zonnepanelen en vloerverwarming
– Prachtige luxe keuken
– Strakke badkamer en toilet
– Heerlijke diepe tuin met mooie beplanting en verschillende zitjes
– Prachtig bijgebouw inzetbaar bv als kantoor aan huis of atelier
– Het bos Nimmerdor op 10 minuten loopafstand en Den Treek op 15 minuten loopafstand
Schakel?een NVM-aankoopmakelaar in. Een NVM-aankoopmakelaar komt op voor uw belang en bespaart u tijd, geld en zorgen!??




































