WE NEMEN GEEN BEZICHTIGINGEN MEER AAN BIJ DEZE WONING IVM GROTE INTERESSE
Starters opgelet! Ben jij op zoek naar een superleuk appartement met tuin, achterom en vrijstaande berging en dan ook nog gelegen in de mooie wijk Leusderkwartier? Dan moet je dit appartement gezien hebben!
Dit leuke appartement is gelegen op de Fahrenheitstraat 52A, heeft 2 slaapkamers, is net afgewerkt en heeft een heerlijke tuin. De berging zit nog apart van het perceel en snoept dus niets van je tuin af. Nieuwsgierig geworden? MARÈLL makelaars laat je de woning graag zien!
Het appartement maakt onderdeel uit van een kleinschalig complex en is gelegen op de begane grond. Parkeren is hier geen probleem, je kunt vrij parkeren voor de deur. De Leusderweg met de vele winkels is op loopafstand maar ook bosgebied Nimmerdor ligt om de hoek en wandel je zo in weg. Het oude stadscentrum en centraal station liggen beide op 10 minuten fietsen. Ook een ideaal appartement dus als je in Utrecht of Amsterdam werkt.
Het appartement:
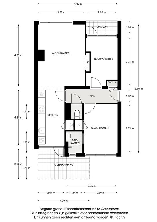
Via de entree kom je in de hal met meterkast. Vanuit de hal zijn alle ruimtes toegankelijk. De lichte woonkamer beschikt over gestuukte wanden en een nette laminaatvloer. De slaapkamer die grenst aan de woonkamer kan er eenvoudig bij worden getrokken zodat je daar een eetkamer van kunt maken. Daarmee betrek je dan ook meteen het balkon aan de voorzijde weer bij je leefruimte.
De woonkamer geeft toegang tot de open keuken, gelegen aan de achterzijde van het appartement met een toegangsdeur naar de tuin. De keuken is in 2017 volledig vernieuwd en voorzien van inductiekookplaat, combi-oven en koel/vriescombinatie. Tevens vind je hier de aansluiting voor de wasmachine, keurig weggewerkt achter een kastdeurtje. In een vaste kast zit de cv-opstelling.
Vanuit de hal zijn de twee slaapkamers bereikbaar van respectievelijk 10 en 9 m2. De grote slaapkamer is voorzien van een vaste kast en grenst aan de badkamer. Deze is eenvoudig maar goed onderhouden en beschikt over een douche en wastafel. Het toilet is apart bereikbaar via de gang. De kleine slaapkamer ligt aan de voorzijde, is voorzien van nette laminaatvloer en heeft aan de voorzijde toegang tot het balkon.
De tuin:
De tuin is prettig ruim en heeft een eigen achterom. De verschillende terrasjes en beplanting maken het echt gezellig en de ligging op de hoek geeft een vrij gevoel. Via de poort kom je direct bij de berging die bij het appartement hoort.
De VVE:
Er is een gezonde en actieve VvE, de servicekosten bedragen € 154,40 per maand. Het complex is goed onderhouden en de woning heeft energielabel C.
Wat maakt Fahrenheitstraat 52A je nieuwe thuis:
– Heerlijke tuin voorzien van verschillende terrasjes en veel groen
– Dé kans om als starter in de wijk Leusderkwartier te wonen
– Twee slaapkamers of een riante woon/eetkamer
– Ruime berging, ideaal gelegen ten opzichte van de woning, net naast je tuin.
– Parkeren voor de deur
– Volledig isolatieglas
– Keuken uit 2017
– Perfecte ligging ten opzichte van voorzieningen, natuur en historische binnenstad
Schakel?een NVM-aankoopmakelaar in. Een NVM-aankoopmakelaar komt op voor uw belang en bespaart u tijd, geld en zorgen!
























