Hier wil je wonen! Een superleuk, strak afgewerkt en dus instapklaar huis gelegen in een van de meest karakteristieke straatjes van het geliefde Soesterkwartier!
Het huis kenmerkt zich in een notendop door de plezierige hoge plafonds op de begane grond, een strakke ruime moderne keuken, strakke afwerking, maar liefst 4 slaapkamers, een moderne badkamer EN een tuin op het westen. Als kers op de taart is de tuin ook onlangs nog helemaal aangepakt. Dit is dus met recht “Dozen uitpakken en genieten!”
We nemen je graag mee:
| VOORTUIN |
De voortuin geeft ruimte voor een gezellig bankje, de bakfiets of simpelweg lekker veel groene planten. Het houtwerk zit strak in de verf en de eigenaar heeft daarbij gekozen voor een mooie eigentijdse en stijlvolle kleur. Dit maakt het een mooi geheel. Welkom!
| BEGANE GROND |
Bij binnenkomst in de hal voel je meteen de hoogte van de plafonds en trekt je oog naar de fraaie houten vloer en strak zwartgeverfde trap naar boven; een mooi geheel.
Diezelfde hoogte voel je in de woonkamer en je ziet je dat de stoere houten vloer is doorgelegd over de hele begane grond. De wanden en plafonds zijn strak afgewerkt. Het grote raam aan de voorzijde van de woning zorgt voor optimale lichtinval en de woonkamer is zo groot dat er meer dan genoeg plek is voor zowel een grote eettafel als een heerlijke ruime zithoek. Tevens vind je hier nog een verrassend diepe trapkast.
Aan de achterzijde, in de aanbouw, staat de moderne en ruime keuken in hoekopstelling. De keuken heeft strakke witte kastjes, een natuurstenen werkblad en diverse hoogwaardige inbouwapparatuur, waaronder een 5 pits gas-op-glas-kookplaat, vaatwasser, oven, combi-oven en tenslotte een koel-/vriescombinatie. De plafondhoge kasten bieden ontzettend veel ruimte voor alle servies, schalen en kookgerei. Dit is dan ook met recht een heerlijke plek om te kokkerellen. Door de open verbinding met de woonkamer kan je tijdens het koken nog steeds een oogje op je kinderen houden of deel je gewoon lekker mee in het gesprek als je bezoek hebt.
In de aanbouw is ook het toilet en de cv-opstelling geplaatst. Het toilet met fonteintje kent een eigentijdse strakke afwerking.
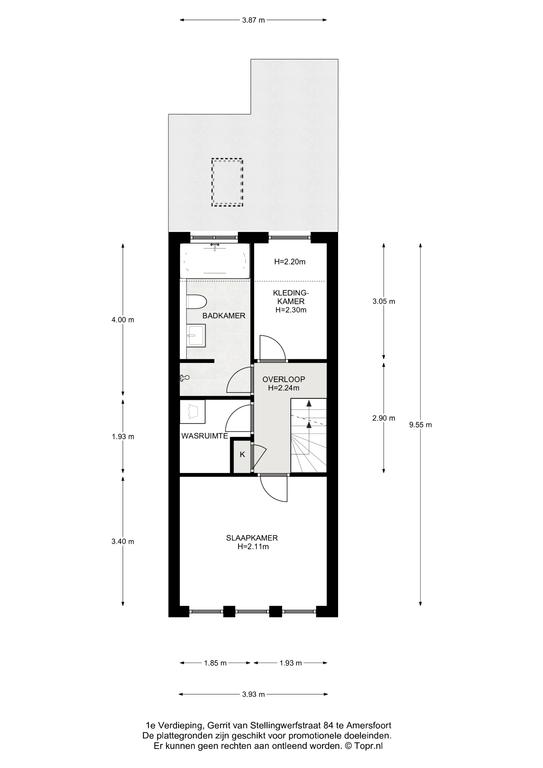
|EERSTE VERDIEPING|
Met de vaste trap in de hal kom je op de eerste verdieping. Hier vind je twee slaapkamers, een wasruimte en badkamer. Op de vloer ligt een keurige doorgelegde laminaatvloer en ook hier zijn de wanden gestuukt. De eerste slaapkamer bevindt zich aan de voorzijde. Deze ligt over de gehele breedte van het huis en is daardoor ook groot (13 m2) en ideaal als ouderslaapkamer. De grote raampartij over de volle breedte brengt veel licht naar binnen.
Aan de achterzijde bevindt zich de tweede slaapkamer. Ook deze kamer is van prima formaat met 6 m2, ideaal als kinderkamer of werkplek. De badkamer is modern en afgewerkt met een mooie grote witte tegel, in combinatie met een zwarte tegelvloer. De badkamer is van goed formaat (7 m2) en is van alle gemakken voorzien: naast een groot bad vind je hier een inloopdouche, toilet en wastafel. Hier loop je elkaar tijdens de ochtendspits niet in de weg!
De oude badkamer van vroeger is tegenwoordig in gebruik als handige wasruimte. Deze is zo groot dat er naast een wasmachine en droger ook nog veel bergruimte is.
|TWEEDE VERDIEPING|
Een vaste trap brengt je naar een volwaardige tweede verdieping. Hier vind je nog eens twee slaapkamers. Ook deze verdieping kent weer een strakke wand en vloerafwerking.
De hoog opgetrokken achtergevel zorgt voor een grote kamer aan de achterzijde (11 m2). Aan de voorzijde is de vierde slaapkamer, deze is vergroot door een dakkapel. Dit zorgt voor veel licht en nog meer leefruimte (9 m2).
Tenslotte beschikt deze verdieping nog over een comfortabel airco-unit voor de warme zomeravonden.
| ACHTERTUIN |
De diepe achtertuin ligt op het westen wat voor de nodige zonuurtjes zorgt. De huidige eigenaar heeft recentelijk de tuin opnieuw aangelegd en daarbij is niet bespaard op het gebruik van materialen. De tuin is dan ook aangelegd met grote natuurstenen tegels, cortenstalen borderranden en tegen de berging is achterin de tuin een mooie grote overkapping geplaatst. De berging tenslotte is ruim, maar liefst 13 m2. Ideaal voor bijvoorbeeld het stallen van de fietsen en het opbergen van tuingereedschap en tuinkussens. De berging heeft nog eigen extra brede uitgang naar de achterom. Zo hoef je dus ook niet met je fiets door de tuin.
| IN DE BUURT |
De Gerrit van Stellingwerfstraat is rustig gelegen en toch tegelijkertijd op loopafstand van centraal station Amersfoort, binnenstad en alle voorzieningen van het Eemplein. Maar ook bos Birkhoven, het openluchtzwembad en Dierenpark Amersfoort zijn allemaal op een kleine 10 minuten fietsen
Wat maakt Gerrit van Stellingwerfstraat 84 Je nieuwe thuis?
– Met recht instapklaar – strakke afwerking
– Mooie hoge plafonds
– Tuin met ligging op het westen
– Fraaie overkapping in de tuin
– Mooie massief houten vloer
– Grote keuken
– 4 slaapkamers
– Wonen in een karakteristiek straatje
– Perfecte stadse ligging
Schakel een NVM-aankoopmakelaar in. Een NVM-aankoopmakelaar komt op voor jouw belang en bespaart je tijd, geld en zorgen!






















































