| HR++ GLAS | STRAKKE VLOER EN WANDAFWERKING | SPOUWISOLATIE | VLOERISOLATIE | ENERGIELABEL C |
Hier wil je wonen. Deze fraaie, lichte en groen gelegen twee-onder-een-kapwoning met 4 slaapkamers ligt in het geliefde Amersfoort Zuid. Met een ligging iets van de weg, zicht aan de overzijde op het bos en grote bomen rondom het huis is het hier fijn, rustig en groen wonen. Vanuit je voordeur loop je zo het bos in.
Het is de perfecte plek om je kinderen op te laten groeien in een rustige bosrijke omgeving en om de hoek de natuurspeelplaats het Limvioveld. Daarnaast zijn er tennisbanen op loopafstand, basisscholen en middelbare scholen dichtbij, de dierentuin ligt op een paar minuten fietsafstand en in de zomer kun je genieten van bosbad Amersfoort. Daarnaast ben je met enkele fietsminuten in het gezellige historische centrum van Amersfoort. Centraal station Amersfoort ligt op 10 minuten loopafstand en natuurlijk is ook de A28 aansluiting snel bereikbaar voor het dagelijks woon-werkverkeer.
In 2011/2012 is de woning voorzien van HR++ glas, spouwisolatie, nieuwe hardhouten kozijnen en strakke vloer- en wandafwerking.
We nemen je graag mee:
Voorzijde & voortuin
Wat meteen opvalt als je voor het huis staat is de groene, intieme ligging. Aan de voorzijde van het huis ligt voor je eigen diepe tuin namelijk ook nog een plantsoen. Samen met de entree aan de zijkant zorgt dit voor veel privacy en een vrij gevoel.
Entree
Je komt binnen in de hal met meterkast, toiletruimte met fonteintje, garderobe-nis, trapopgang naar de eerste verdieping en toegang tot woonkamer en keuken.
De woonkamer
In de leefruimte beneden ligt een mooie lichte, houten vloer en de wanden zijn glad gestukt. Samen met de grote raampartijen aan zowel voor- als achterzijde maakt het deze ruimte plezierig licht. Ook heb je aan beide zijden vrij zicht op al het groen rondom het huis. Aan de voorzijde is de ideale plek voor een grote zithoek. De openslaande deuren aan de voorzijde naar een klein terras en de sfeervolle houthaard maken het geheel af.
Aan de achterzijde is de plek voor een grote eettafel om vrienden te ontvangen en gezellige avonden te tafelen. Een mogelijkheid is om de keuken te betrekken bij dit gedeelte en zo een grote woonkeuken met bijvoorbeeld kookeiland te realiseren.
De keuken
De keuken ligt aan de tuinzijde van de woning. Ook hier sta je weer in direct contact met buiten door het grote raam en de loopdeur naar het terras, grenzend aan de keuken. De keuken is in lichte kleurstelling en voorzien van gaskookplaat, vaatwasser en afzuigkap. Naast de keuken in de hal, bevindt zich nog een praktische en ruime trapkast voor al je proviand.
Eerste verdieping:
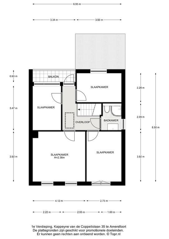
Op de eerste verdieping bevinden zich een ruime overloop, 4 goede slaapkamers en een badkamer. Door de breedte van het huis zijn alle kamers van een plezierig formaat. De gehele overloop en slaapkamers zijn, net zoals op de begane grond, voorzien van een fraaie houten vloer en de wanden zijn glad gestukt (met uitzondering van de badkamer).
De grootste slaapkamer aan de voorzijde meet 16 m2 en heeft plezierig vrij uitzicht over het bos. De tweede slaapkamer aan de voorzijde (ca 11 m2) is voorzien van een frans balkon. Aan de achterzijde bevinden zich eveneens twee slaapkamers van 8 m2, beide met fraai uitzicht op de tuin. De badkamer is in lichte kleurstelling en voorzien van douche, wastafel en toilet.
Op de overloop heb je toegang tot het balkon aan de achterzijde en via de vlizotrap bereik je een ruime zolder. Hier bevindt zich ook de cv-ketel. Doordat de zolder over de hele breedte van het huis loopt, biedt deze ruimte de mogelijkheid om met behulp van een opbouw en vaste trap nog twee extra slaapkamers te realiseren.
De tuin
Naast een riante voortuin, heb je ook aan de achterzijde een bijzonder vrij gelegen en diepe achtertuin. Hier geniet je volop van privacy. Door de gunstige ligging ten opzichte van de zon heb je altijd wel een plek waar je schaduw kunt vinden of juist de zon kunt opzoeken. Door het aangrenzende bos, de vele bomen in de directe omgeving en de vrije ligging van de tuin is het een heerlijke plek om te verblijven van s ’morgens vroeg tot laat in de avond. Achterin de tuin bevindt zich nog een stenen berging met wasmachine/drogeropstelling.
De Garage
De woning beschikt tevens over een eigen losstaande garage. Deze bevindt zich aan de zijkant van de woning en is via een apart pad bereikbaar
Wat maakt ‘Kappeyne van de Coppellolaan 35’ je nieuwe thuis:
• 4 goede slaapkamers
• Prachtige, groene lokatie aan de rand van het bos
• Zolder met uitbreidingsmogelijkheden
• Veel licht in huis door grote raampartijen
• Comfortabel wonen in stad en groen
• HR++ glas en spouwisolatie
• De ideale plek om kinderen op te laten groeien
Interesse in deze woning? Schakel een NVM-aankoopmakelaar in. Een NVM-aankoopmakelaar komt op voor uw belang en bespaart u tijd, geld en zorgen!







































































