Hier wil je wonen! Ben je op zoek naar een fijn appartement met 3 kamers vlakbij de binnenstad? Hier kun je heerlijk op jezelf wonen!
Dit appartement met groot balkon op het westen, strak gestucte wanden en fraaie vloerafwerking is ideaal voor starters!
Het complex kent een gezonde en actieve VvE die ook actief met verduurzaming bezig is.
We nemen je graag even mee:
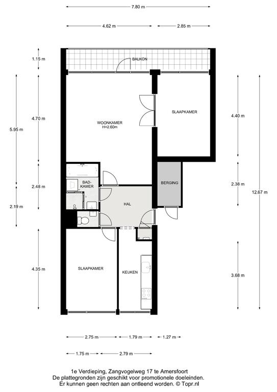
Op de begane grond bereik je via de hoofdentree met intercom de centrale hal met trappenhuis. Via de centrale entree kom je met de trap op de eerste verdieping waar zich het appartement bevindt.
Je komt binnen in de ruime hal die toegang geeft tot alle kamers van het appartement. Bij binnenkomst valt direct de strakke vloer- en wandafwerking op. In 2017 zijn alle wanden glad gestukt en is een fraaie laminaatvloer gelegd in hal, woonkamer, eetkamer en slaapkamer.
De woonkamer is heerlijk ruim en licht door de grote raampartij over de gehele breedte. Naast een grote zithoek en is nog plek genoeg voor een eettafel. Vanuit de woonkamer heb je toegang tot een ruim balkon over de volle breedte van het appartement. Deze is zonnig gelegen op het westen waardoor je fijn de middag- en avondzon hebt. Je kijkt uit op een groenstrook met grote bomen.
De woonkamer heeft openslaande deuren naar een zijkamer welke nu in gebruik is als slaapkamer maar ook prima een invulling kan krijgen als eet- of werkkamer.
De badkamer is in neutrale kleurstelling en ingericht met douche, bad, wastafelmeubel en wasmachine aansluiting. Het toilet zit in een aparte ruimte, naast de badkamer.
De keuken heeft paneeldeurtjes in een hippe blauwe kleur, een keramiek gootsteen en is verder voorzien van 4pits keramische kookplaat en oven.
De slaapkamer aan de achterzijde is door de grote raampartij licht en door de goede afmeting is er voldoende plek voor een tweepersoons bed en een grote garderobekast. Je kijkt plezierig weg op het groen van de gezamenlijke achtertuinen.
Naast de eigen entree van de woning bevindt zich een ruime berging. Een ideale plek voor het opbergen van spullen en proviand. Tenslotte bevindt zich op de begane grond nog een tweede grote berging voor de fietsen.
De ligging: De woning ligt op korte fietsafstand van de binnenstad van Amersfoort. Je dagelijkse boodschappen doe je aan de Van Randwijckstraat. Hier bevinden zich een lekkere bakker, slager en supermarkt. Uitvalswegen zoals de A1 en A28 liggen heel dichtbij. Dit is met recht een toplokatie te noemen!
VvE: Het complex heeft een actieve en gezonde VvE waar diverse verduurzamingsmaatregelen op de rol staan voor de aankomende jaren. Zo wordt er binnen nu en 2 jaar overal HR++ beglazing geplaatst en is er ook overeenstemming om zonnepanelen te plaatsen. Servicekosten bedragen EUR 216,- per maand (dit bedrag is inclusief stookkosten)
Wat maakt Zangvogelweg 17 ‘Je Nieuwe Thuis’:
• Zeer centrale ligging ten opzichte van stad en uitvalswegen
• Strak afgewerkte wanden en vloeren
• Veel licht door de grote raampartijen
• Groot balkon gelegen op het westen
• Actieve en gezonde VVE
• Twee ruime bergingen
• Twee goede slaapkamers



































