Hier wilt u wonen! Dit is een heerlijk familiehuis voor liefhebbers van wonen op de geliefde Berg en nabij het historische centrum van Amersfoort. Op een mooi stukje aan de brede lommerrijke Utrechtseweg komt namelijk deze, goed onderhouden en fraaie karakteristieke helft van een 2/1 kap woning beschikbaar. De ligging is optimaal zo dicht bij de gezellige binnenstad, het centraal station, de goede voorzieningen op de Utrechtseweg zelf en het vele groen aan de zuidkant.
Dit huis zal u verrassen met haar ruime 174 m2 aan woonoppervlak. Ook een grote garage en ruime parkeermogelijkheid op eigen terrein zijn aanwezig. De woning is gebouwd is 1924 en kent veel geliefde originele kenmerken uit die bouwperiode. Wat denkt u van een fraaie dubbele erker aan de voorgevel, mooie grote overstekken, glas in lood en een stijlvolle serre.
De woning is goed onderhouden; in 2022 is al het buitenschilderwerk nog gedaan en het dak is in 2013 gerenoveerd. Op het gebied van verduurzaming heeft de woning met energielabel C al een goede basis. Vrijwel overal in huis is er isolatieglas en er is dakisolatie. De betonnen vloer over de gehele begane grond biedt verder een goed startpunt voor het aanleggen van vloerverwarming. Het dak aan de achterzijde op het zuidwesten en het platte dak van de garage geven ten slotte goede mogelijkheid tot het plaatsen van zonnepanelen.
We nemen u graag mee:
De diepe en rijkelijk begroeide voortuin aan de voorzijde van het huis vormt een plezierige groene barrière tussen huis en straat. Samen met de grote volwassen bomen in de straat ligt de woning dan ook plezierig groen. Via het oprit met plek voor 2 auto’s komt u bij de zij-intree. De entree kent een fraaie uitstraling met grote diepe overstek en aan weerszijden van de voordeur grote zijvensters. Een warm welkom!
In de hal vindt u de garderobe, toilet met fonteintje, meterkast en heeft u toegang tot de kelder en de woonkamer. De kelder is ruim (ca 10 m2) en dan ook ideaal voor de wijnvoorraad en proviand.
De woonkamer is van fors formaat met maar liefst 44 m2. In het midden van de grote woonkamer vormt een grote gemetselde haard het hart van het huis. Hier heeft de huidige eigenaar met het gezin en familie vele gezellige winteravonden gekend.
Aan de voorzijde bevindt zich een aparte gezellige hoek die heel goed een eigen functie kan krijgen als tv-hoek, leeshoek of speelhoek. De houten lambrisering geeft een plezierige en warme uitstraling aan de ruimte. De fraaie erker met bovenlichten geeft instant sfeer en brengt veel licht naar binnen.
De woonkamer loopt aan de achterzijde over in de fraaie serre-uitbouw met origineel glas-in-lood met voorzetramen. Wat een fijne plek voor een grote eettafel met al dat licht dat rondom naar binnen schijnt. De openslaande deur zorgt voor een directe verbinding met de tuin en het eerste terras direct achter de gevel.
De gezellige keuken bevindt zich ook aan de achterzijde en is toegankelijk via de woonkamer. De keuken is in lichte kleurstelling, voorzien van een combinatie van granieten en roestvrijstalen werkblad en beschikt over een 4-pits gasfornuis, oven, vaatwasser en koelkast. De vele kastjes bieden genoeg ruimte voor al uw kookgerei. Mocht de nieuwe bewoner deze keuken bij de woonkamer willen betrekken dan zijn daar eenvoudige mogelijkheden voor. Dat laten we u graag zien tijdens een persoonlijke bezichtiging.
De eerste verdieping:
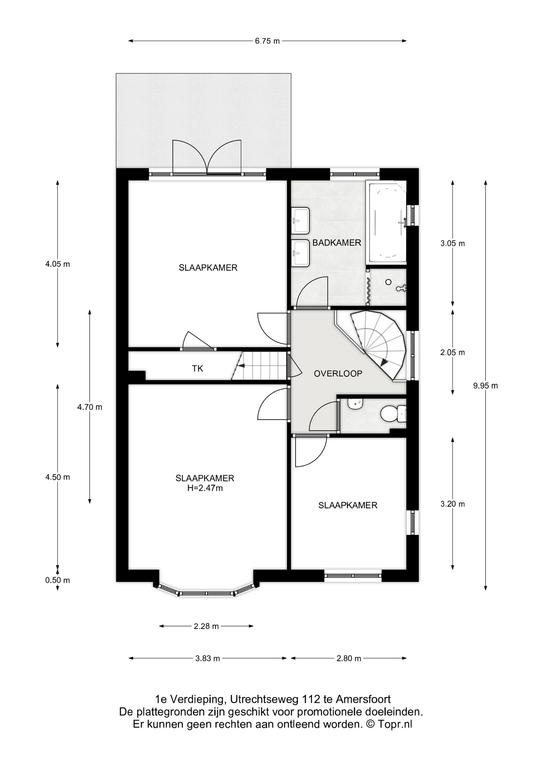
De trapopgang naar boven brengt u naar de overloop van deze verdieping. Allereerst vindt u hier een riante badkamer met volop daglicht en veel ruimte. De hoekligging en daarmee de twee ramen aan twee zijden geven veel licht en maken het een plezierige ruimte om te zijn. De badkamer is compleet met zowel, bad, grote douche als dubbele wastafel.
Het toilet zit apart op de overloop, ook weer ruim en voorzien van fonteintje. Op deze verdieping vindt u verder maar liefst 3 grote slaapkamers. (waarvan de huidige eigenaar er 2 samen heeft gevoegd)
De eerste slaapkamer bevindt zich aan de voorzijde, is ruim met ca 17 m2 en heeft veel charme door de erker.
De andere kamer aan de voorzijde (op dit moment gedeeltelijk samengevoegd met de andere kamer aan de voorzijde) meet ca 9 m2. Een gedeelte van deze kamer is nu in gebruik als kastenkamer, toegankelijk vanuit de overloop. De derde slaapkamer aan de achterzijde meet ca 16 m2, heeft een vaste inbouwkast en grote openslaande deuren.
De tweede verdieping:
Een vaste trap brengt u tenslotte naar de tweede verdieping wat wederom een volwaardige woonlaag is met heel veel ruimte: maar liefst 36 m2 woonoppervlak. U vindt hier weer 3 slaapkamers, een bergruimte, ruimte voor cv-opstelling en een aparte wasruimte. Deze verdieping leent zich ook uitstekend om er een tweede badkamer te realiseren.
Tenslotte bereikt u via een vlizotrap nog de vliering voor nog meer bergruimte.
Buiten
De achtertuin ligt op het zuidoosten en biedt daarmee veel licht in de tuin en toch ook de nodige verkoeling in de zomer. De tuin is charmant aangelegd met klinkers, een verdiept terras en verschillende groenborders. De garage is riant met 23 m2. Deze zou verkleind kunnen worden en bijvoorbeeld deels als overkapping bij de tuin getrokken kunnen worden. We laten u graag de mogelijkheden zien.
Ligging
Het Bergkwartier is een van de oudste wijken van Amersfoort en staat bekend om haar vele groen, lommerrijke lanen en jaren ‘30 woningen. Het is dan ook niet verwonderlijk dat de woningen in het Bergkwartier het predicaat beschermd stadsgezicht hebben gekregen.
De ligging van de woning is zeer gunstig ten opzichte van de bossen met de vele recreatiemogelijkheden. Daarbij ligt de historische binnenstad van Amersfoort op 5 minuten fietsen; het centraal station Amersfoort bevindt zich op fiets/loopafstand. Op loopafstand van de woning vindt u verder verschillende goede horeca en goede speciaalzaken voor uw dagelijkse boodschappen zoals een bakker, scharrelslager, groente speciaalzaak en kaas- en wijnzaak.
Laat u verrassen door deze woning tijdens een persoonlijke bezichtiging. We nemen graag de tijd om u deze woning te laten zien!







































































