Hier wil je wonen! Wat een verrassend lichte, ruime en speels opgebouwde woning. De woning heeft maar liefst 121 m2 woonoppervlak, een balkon, een groot dakterras, een tuin en is ook nog heerlijk gelegen aan groen en water! Laat je verrassen door de hoge plafonds, de mooie lichtinval en de vide in het huis! De woning is keurig afgewerkt, daarmee instap klaar en heeft een energielabel B. De huidige eigenaar heeft in 2021 deels geschilderd, de binnendeuren vernieuwd en op begane grond en eerste verdieping zijn hoge plinten geplaatst. Voor de nieuwe eigenaar is het een kwestie van dozen uitpakken en meteen genieten van “Je Nieuwe Thuis”!
Loefzijde 33 ligt aan een verkeersluwe, groene binnenplaats met diverse speelvoorzieningen voor kinderen van alle leeftijden. Hier kun je veilig op straat met de buurkinderen buiten spelen tot de zon ondergaat!
De Entree en voortuin.
De entree van de woning ligt aan de zijde van het hofje. In de voortuin bestaat de erfafscheiding uit 3 fruitbomen. Een peren-, appel- en pruimenboom zorgen voor een vriendelijk groen aanzicht en natuurlijk: volop fruit uit eigen tuin!
Bij binnenkomst van de woning word je meteen verrast door het hoge plafond, de mooie lichtinval en de vide die alle woonlagen van het huis met elkaar verbindt. Het grote raam, dat maar liefst twee verdiepingen hoog is, zorgt voor veel natuurlijk licht in het hele huis.
In de hal vind je ruimte voor garderobe, meterkast en toegang tot de berging met wasmachine- en drogeraansluiting (ook toegankelijk vanuit buiten).
Vanuit de hal kom je vervolgens bij de trapopgang naar de eerste verdieping, het toilet, de badkamer en de grote slaapkamer.
Het toilet is modern in neutrale grijs-wit kleurstelling met fonteintje.
De badkamer is zeer ruim en heeft een moderne en strakke uitstraling. De badkamer is voorzien van bad, riante inloopdouche en dubbele wastafels. De zwarte accessoires, de fraaie ronding in de afscheidingswand en de combinatie van mozaïektegels met de witte wandtegel en zwart-witte tegelvloer maken het één geheel. Echt een zeer sfeervolle ruimte.
De slaapkamer op deze woonlaag is ruim met 25 m2 en biedt meer dan genoeg plek voor zowel een grote garderobekast als een zitje of bijvoorbeeld werkplek. Vanuit de bouw waren dit twee slaapkamers, wat ook eenvoudig weer als zodanig kan worden teruggebracht. De slaapkamer kent een strakke afwerking, is plezierig licht door de vele ramen en heeft een directe verbinding met de tuin.
De tuin loopt over in een grote waterpartij wat zorgt voor een extra vrije en groene beleving. Hier is het ’s ochtend plezierig wakker worden met de geluiden van vogels, eenden en meerkoetjes!
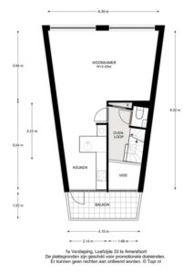
Eerste verdieping
De trapopgang brengt je naar de eerste verdieping met open keuken, woonkamer en tweede toilet. Het toilet is strak en modern afgewerkt. Over de gehele verdieping ligt een massief houten parketvloer. De open keuken bevindt zich aan de voorzijde van het huis. De keuken is op maat gemaakt, strak en tijdloos vormgegeven en beschikt over diverse inbouwapparatuur waaronder een 4-pits gaskookplaat, combi oven met hete lucht en stoom (Miele), koelkast en vaatwasser (Bosch 2019). Via de keuken heb je toegang tot het balkon aan de voorzijde. Dit balkon ligt op het oosten en is dan ook een ideale plek voor je eerste kop koffie in de ochtendzon.
De keuken loopt aan de achterzijde over in een riante woonkamer met plek voor zowel de eettafel als een grote zithoek. De grote glaspartij brengt veel licht naar binnen en je kijkt heerlijk weg over het water en groen. Als je naar buiten kijkt, gebeurt er altijd wel iets rondom of op het water. Wat een fijne plek om te zijn!
Tweede verdieping
De tweede verdieping biedt tenslotte ruimte aan een tweede badkamer, een bergkast met cv-opstelling (cv uit 2022 en mechanische ventilatie uit 2021), twee goede slaapkamers en een groot dakterras.
De badkamer is compact, keurig afgewerkt en voorzien van wastafel en douche.
De slaapkamers zijn met ca. 7 m2 en 8 m2 van goed formaat, keurig afgewerkt en plezierig licht.
Via de overloop kom je tenslotte op het grote dakterras, gelegen op het westen. Dit is dan ook dé plek om in de middag en avond te genieten van de zon en van het buitenzijn met het vele groen om je heen.
Ligging
De woning is heerlijk rustig gelegen aan een autoluw hofje. In de directe omgeving bevinden zich meerdere scholen en het winkelcentrum Emiclaerhof en Sportclub Pellikaan liggen op 5 minuten fietsafstand. Met vijftien minuten fietsen sta je in de historische en gezellige binnenstad van Amersfoort. Voor een wandeling in het groen ga je naar het nabij gelegen Park Schothorst, met de grootste kindernatuurspeelplaats van Amersfoort. Wil je de stad uit? Er is een rechtstreekse trein naar Amsterdam Zuid en Duivendrecht vanaf Station Schothorst en de uitvalswegen A1 en A28 zijn om de hoek.
Wat maakt Loefzijde 33 ‘je nieuwe thuis’:
• Woonoppervlakte circa 121 m2
• Instapklare woning
• Strak afgewerkt en zeer goed onderhouden
• Energielabel B
• Drie slaapkamers met mogelijkheid tot vier
• Optimale lichtinval
• Autoluw hofje met binnentuin en speelgelegenheid
Interesse in dit huis? Schakel?een NVM-aankoopmakelaar in. Een NVM-aankoopmakelaar komt op voor uw belang en bespaart u tijd, geld en zorgen!

























































