Hier wil je wonen! Dit is namelijk weer zo’n buitenkans; een hoogwaardig afgewerkte, instapklare woning op een toplocatie! Dit is je kans om op loopafstand van binnenstad en centraal station te wonen en dat in een woning met bouwjaar 2014, dus voorbereid op de toekomst en zeer energiezuinig!
Albert Fikspad is uitermate geschikt voor gezinnen en stellen die graag stads en comfortabel willen wonen en toch op een rustige plek! Het is een huis met heerlijk veel zon in de tuin (op het zuiden), eigen parkeerplaats, rustig gelegen aan een wandelpad met groenstrook en om de hoek een plantsoen om gezellig met de kinderen uit de buurt te spelen. De woning is fors van formaat met maar liefst 139 m2. Je kunt nog verder vergroten door een aanbouw en een dakkapel op zolder.
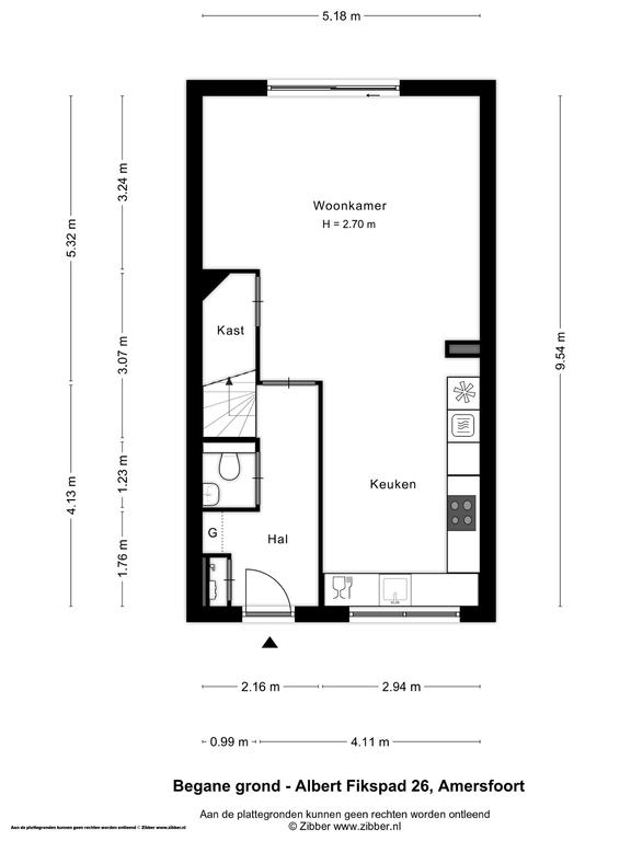
Entree
De entree van het huis ligt aan een wandelpad met groenstrook. In de hal bevindt zich de garderobe, een modern toilet met fonteintje, de meterkast en de trapopgang naar de eerste verdieping. Wat meteen opvalt als je binnenkomt is de fraaie strakke gietvloer. Samen met de glad afgewerkte wanden en hoge plinten zorgt het voor een zeer strakke, neutrale en moderne basis voor je eigen inrichting! Zo maak je er snel ‘je nieuwe thuis’ van.
Keuken
De keuken bevindt zich aan de voorzijde van het huis en staat in directe verbinding met de woonkamer. Door de handige L-opstelling is er een hele fijne ruimte ontstaan met veel ruimte om te koken en tegelijkertijd ook plek voor een grote eettafel. Zo blijf je gezellig in contact met de mensen aan de eettafel als je staat te koken.
De keuken is hoogwaardig afgewerkt. De keukenkastjes hebben strakke witte fronten en het werkblad is van donkergrijs composiet. Verder beschikt de keuken over diverse inbouwapparatuur waaronder een vaatwasser, koel-vriescombinatie, inductiekookplaat en magnetron-oven.
Woonkamer
De woonkamer ligt aan de achterzijde. Door de grote schuifpui komt er een zee van licht naar binnen en sta je heerlijk in verbinding met de tuin. Met mooi weer zet je de schuifdeur helemaal open en wordt het terras een verlengstuk van je huis.
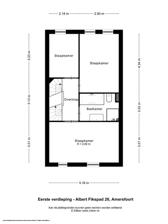
Eerste verdieping
Ook op deze verdieping is weer een mooie gietvloer gelegd, dit keer in een fraaie taupe kleur. Voor het complete plaatje ook hier weer glad afgewerkte wanden en mooie hoge plinten. Je vindt op deze woonlaag 3 slaapkamers en een grote badkamer. De slaapkamer aan de voorzijde van de woning strekt zich over de hele breedte en is dan ook goed van formaat met ca 15 m2. De kamer is plezierig licht door de grote dubbele raampartij met glas tot aan de vloer. Aan de achterzijde bevinden zich de andere twee slaapkamers. Beide weer van goed formaat met respectievelijk 7 en 13 m2. De badkamer is ruim (6 m2), modern afgewerkt met een lichte en grijze tegel en is voorzien van grote wastafel met meubel, bad, toilet en een inloopdouche.
Tweede verdieping
Zelfs op deze verdieping vindt je weer een fraaie gietvloer; in dit huis is op afwerking niet bezuinigd! Allereerst tref je de grote multifunctionele ruimte met de opstelling voor was-apparatuur en de technische installatie. Deze ruimte doet verder momenteel dienst als logeerruimte. Achter de knieschotten kan je nog veel spullen kwijt. Het veluxraam brengt veel licht naar binnen. Wil je de zolder alsnog vergroten, dan is er hier ook een dakkapel te plaatsen. Je kunt op deze verdieping met kleine aanpassingen zelfs nog een extra slaapkamer en/of badkamer maken.
Aan de voorzijde is er nog een ruime 4e slaapkamer, op dit moment als werkkamer in gebruik en met een afmeting van ca 16 m2. Door de recht opgetrokken voorgevel heeft deze kamer geen schuine wanden wat een voor maximaal woonoppervlak zorgt. De grote dubbele ramen, die bijna tot aan de vloer reiken, zorgen voor maximale lichttoevoer.
Buiten
De tuin ligt perfect op het zuidwesten. Dat betekent dat je de hele middag en tot aan het einde van de dag heerlijk genieten van de zon! De tuin is keurig aangelegd met een grote grijze tegel en fraaie strakke groenborders. De twee dak-platanen zorgen in de zomer voor een prettige natuurlijke schaduw. Verder vind je achterin de tuin de houten schuur om je fietsen en andere spullen in op te bergen.
Ligging
Albert Fikspad heeft de perfecte locatie. Een ideale plek als je rustig, maar toch heel dichtbij de oude binnenstad wilt wonen. Je woont aan een looppad met groenstrook en om de hoek een groot plantsoen met volop speelgelegenheid. De woning ligt op een paar minuten lopen van het Eemplein en ook maar een paar minuten lopen naar treinstation NS-Amersfoort Centraal. Ook de uitvalswegen zijn dichtbij, je zit zo op de A1 of de A28.
Wat maakt het Albert Fikspad 26 ‘je nieuwe thuis’
– Super strakke afwerking!
– Uitstekend geïsoleerd en volledig gasloos!
– In de gehele woning ligt vloerverwarming en vloerverkoeling. Optimaal comfort!
– Eigen parkeerplaats op binnenterrein
– Mogelijkheid tot zonnepanelen op platte dak
– Toplocatie in het nieuwe gedeelte net buiten het historisch centrum.
– Op loopafstand van Eemplein en het Centraal Station
– Energielabel A
Enthousiast geworden? Dat snappen we! We laten je het huis graag zien tijdens een persoonlijke bezichtiging.
Schakel een NVM-aankoopmakelaar in. Een NVM-aankoopmakelaar komt op voor uw belang en bespaart u tijd, geld en zorgen!

























































