Hier wil je wonen! Deze nieuwbouwwoning met energielabel A++++ springt meteen in het oog! Dit is maximaal duurzaam en energiezuinig wonen met een luchtwarmtepomp en maar liefst 22 eigen zonnepanelen. Met een grote woonkamer, een hoogwaardige keuken, 3 fraaie slaapkamers, badkamer, een grote multifunctionele zolder voor bijvoorbeeld nog 2 slaapkamers en tenslotte een tuin op het zuiden geniet je hier van maximaal wooncomfort!
De woning is instapklaar. De woning is namelijk begin 2022 opgeleverd en wordt nog maar krap een jaar bewoond door de huidige eigenaar. De woning is dan ook om door een ringetje te halen en hier wil je dan ook zo snel mogelijk intrekken!
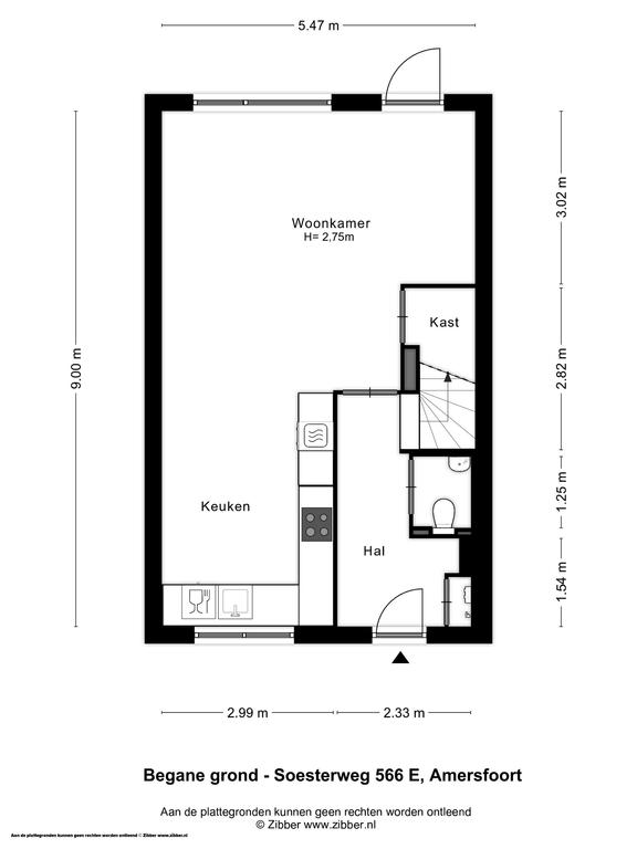
Entree
Als je de entree binnenkomt vind je het keurige toilet, meterkast en trapopgang naar boven. Wat meteen opvalt is de nette en strakke afwerking door de gehele woning. Over de gehele woning ligt een fraaie pvc vloer in houtlook. Daarmee heb je de charme van een houten vloer en toch het gemak en comfort in onderhoud.
De keuken bevindt zich aan de voorzijde van het huis. Deze is in moderne uitvoering met matte greeploze fronten, een wit composiet werkblad en een sfeervolle getrommelde tegel op de achterwand. De keuken is verder voorzien van diverse inbouwapparatuur; zoals een koel-vriescombinatie, combi-magnetron, inductiekookplaat en vaatwasser; allemaal van Siemens uit 2022. Het eetgedeelte wordt afgemaakt met ruimte voor een grote eettafel. Zo kan je koken en tegelijkertijd gezellig bijkletsen met je huisgenoten.
Het eetgedeelte loopt over in de woonkamer. Hier is alle ruimte voor een sfeervolle zithoek. De grote trapkast biedt tenslotte nog veel handige opbergruimte.
Woonkamer
De woonkamer ligt aan de achterzijde. Door de grote raampartij komt er een zee van licht naar binnen en sta je heerlijk in verbinding met de tuin. Door de ligging op het zuiden heb je volop licht in huis en tegelijkertijd is het door het triple-glas tijdens de hete zomerdagen binnen toch lekker koel.
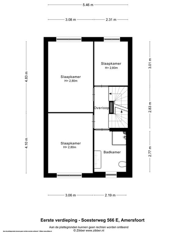
Eerste verdieping
Ook op deze verdieping is een mooie pvc-vloer gelegd. Voor het complete plaatje ook hier glad afgewerkte wanden en mooie hoge plinten. Je vindt op deze woonlaag 3 slaapkamers en een grote badkamer.
De grootste slaapkamer meet ca. 15 m2 en biedt dan ook plek voor een groot bed en een riante kledingkast. De kamer is plezierig licht door de grote raampartij. De andere slaapkamer aan de achterzijde meet ca. 7 m2 en is zeer geschikt als werkkamer of kinderkamer. Door de afmeting van de kamer past hier ook prima een eenpersoonsbed. Aan de voorzijde van het huis bevindt zich de derde slaapkamer en de badkamer. Deze derde slaapkamer is ook ruim met ca. 13 m2.
De badkamer is modern afgewerkt in lichte kleurstelling en voorzien van grote dubbele wastafel met meubel, toilet en een ruime inloopdouche. Het grote raam zorgt voor de natuurlijke en plezierige daglichttoetreding.
Tweede verdieping
Zelfs op deze verdieping vind je de fraaie pvc-vloer. Je treft hier een grote multifunctionele ruimte met de opstelling voor was-apparatuur en de technische installatie. Deze ruimte doet momenteel dienst als logeerruimte. Achter de knieschotten kan je veel spullen kwijt. Het velux-raam brengt veel licht naar binnen. Wil je de zolder alsnog vergroten, dan is hier een dakkapel te plaatsen. Je kan op deze verdieping nog een extra slaapkamer en/of badkamer maken.
Buiten
De tuin ligt perfect op het zuiden. Dat betekent dat je de hele middag tot aan het einde van de dag heerlijk kunt genieten van de zon! De tuin is keurig aangelegd met een speelse, grijze steen en fraaie groenborders. Verder vind je achterin de tuin de houten schuur om fietsen en andere spullen in op te bergen.
Direct grenzend aan de tuin is je eigen parkeerplaats met mogelijkheid tot het plaatsen van een laadpaal.
Ligging
Soesterweg 566E is superfijn gelegen! Een ideale plek als je zowel graag dicht bij het bos als bij de oude binnenstad wilt wonen. De woning ligt midden in een karakteriek jaren ’30 buurtje in het geliefde Soesterkwartier. Met een kleine 10 minuten fietsen sta je midden op de Hof in de historische binnenstad of op Centraal Station. Wil je lekker wandelen of hardlopen in het bos, dan ben je met een paar minuten fietsen in het natuurgebied Birkhoven en Bokkeduinen. Met de auto zit je snel op de uitvalswegen naar de A1 of A28.
Wat maakt het Soesterweg 566E ‘je nieuwe thuis’:
– Super strakke afwerking!
– Gelegen in geliefde Soesterkwartier
– Energielabel A++++
– Maximaal geïsoleerd en volledig gasloos!
– Maar liefst 22 zonnepanelen
– Prachtige ruime keuken
– 4 goede slaapkamers, 5 mogelijk!
– Eigen parkeerplaats op binnenterrein
– Toplocatie ten opzichte van bos en binnenstad
Schakel?een NVM-aankoopmakelaar in. Een NVM-aankoopmakelaar komt op voor uw belang en bespaart u tijd, geld en zorgen!



























































