Hier wil je wonen! Dit strakke 3-kamer appartement met ruim balkon aan de voorzijde van de woning ligt op de derde verdieping van een goed onderhouden complex bij winkelcentrum De Nieuwe Hof in Nieuwland. Met een eigen parkeerplaats en berging een heerlijke plek om te wonen.
Het appartement heeft een ruime living en 2 slaapkamers. Het appartement heeft een keurige wand en vloerafwerking. De keuken is modern in lichte kleurstelling met inbouwapparatuur en voldoende ruimte. Het toilet en de badkamer zijn recent vervangen. De VVE van het complex is gezond en actief. Het goed onderhouden gebouw is voorzien van een lift en automatische deuren. Met energielabel A+ is de duurzaamheid ook prima in orde.
Parkeren doe je op je eigen parkeerplaats in de garage onder het complex. Hier bevindt zich ook je berging. Via de parkeergarage kun je overdekt doorsteken naar het winkelcentrum.
Nieuwsgierig geworden? We nemen je graag mee door dit fijne appartement.
Via de entree met bellentableau kun je via lift of trap naar de derde verdieping. Hier bevindt zich de voordeur van de woning.
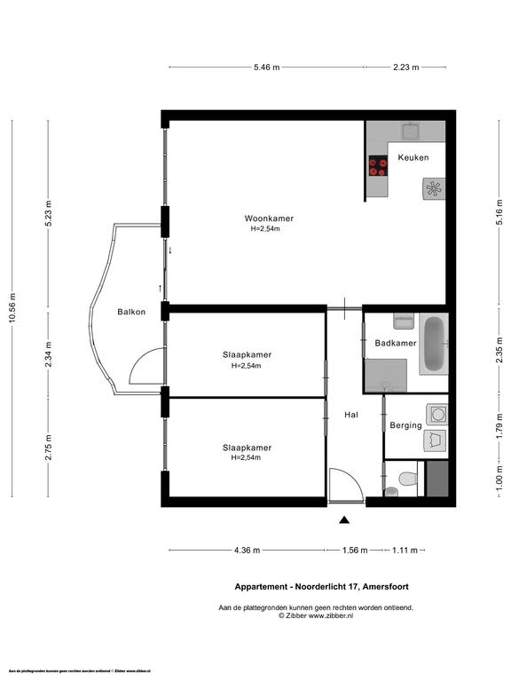
De entree brengt je naar de hal van het appartement. De hal geeft toegang tot de twee slaapkamers aan de ene kant en aan de andere kant van de hal bevindt zich de badkamer, separaat toilet en toegang tot een ruime berging met de wasmachine aansluiting. Vervolgens loop je de ruime woonkamer binnen. Genoeg ruimte voor een aparte eethoek en een ruime zithoek opstelling. De U-opstelling van de keuken schermt net genoeg af terwijl je wel contact met de woonkamer houdt. Vanuit de woonkamer kom je op het brede balkon.
De keuken is voorzien van diverse inbouwapparatuur zoals 4-pits kookplaat, inbouwoven, losse koel/vriescombinatie en vaatwasser. De keuken is in neutrale kleurstelling uitgevoerd.
Het appartement heeft 2 slaapkamers van respectievelijk 12m2en 10m2.
De badkamer is keurig afgewerkt in een taupe/wit kleurstelling en voorzien van een wastafelmeubel, inloopdouche en ligbad. Het toilet is separaat in de hal.
In de onderbouw is een eigen ruime berging aanwezig die plaats biedt aan meerdere fietsen en andere spullen. Daarnaast heb je hier je eigen parkeergelegenheid. Via de parkeerkelder kun je doorsteken naar het winkelcentrum De Nieuwe Hof.
De hoeveelheid ruimte en de goede ligging maken dit een zeer aantrekkelijk appartement op een aangename locatie. De servicekosten bedragen € 213,- per maand voor appartement en parkeerplaats.
Wat maakt Noorderlicht 17 Je nieuwe thuis?:
– Ruime woon- eetkamer met open keuken
– Heerlijk zonnig balkon
– Twee ruime slaapkamers
– Moderne badkamer en separaat toilet
– Veel lichtinval door de grote ramen in woonkamer
– Energielabel A+
– Eigen parkeerplek in de parkeergarage
– Ruime berging
– Ligging naast winkelcentrum
Schakel?een NVM-aankoopmakelaar in. Een NVM-aankoopmakelaar komt op voor jouw belang en bespaart je tijd, geld en zorgen!




































