Hier wil je wonen! Wat een ontzettend fijn huis voor starters! Dit is namelijk je perfecte eerste huis met maar liefst 3 goede slaapkamers én die heerlijke tuin die eigenlijk toch ook wel hoog op je wensenlijstje staat.
De woning is goed onderhouden en de keuken en badkamer zijn in 2015 en 2014 nog vernieuwd. De woning heeft een energielabel A en het platte dak is voorzien van 8 zonnepanelen. De ruime tuin met perfecte ligging op het zuidwesten is de kers op de taart. Morielje 9 ligt in de bijzondere architectonische wijk Kattenbroek. Je zit op loopafstand van winkelcentrum Emiclaer, de Emiclaer vijver en het mooie groene stadspark Schothorst. De woning ligt aan een rustig straatje met veel volwassen groen en een ruim aanbod aan parkeerplaatsen.
We nemen je graag mee:
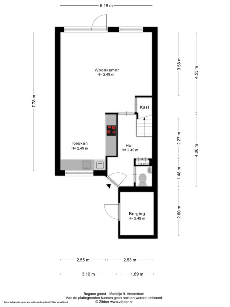
Via de kleine groene voortuin kom je bij de entree. De hal geeft toegang tot toilet, meterkast, trapopgang naar de tweede woonlaag en de woonkamer en keuken.
De moderne, strakke keuken (2015) bevindt zich aan de voorkant van de woning. De L-opstelling zorgt ervoor dat je veel werkblad hebt en veel opbergruimte voor al je keukenspullen. De keuken is in neutraal wit kleurstelling met strakke fronten en een natuurstenen werkblad. De keuken is verder voorzien van de nodige inbouwapparatuur zoals een inductiekookplaat, vaatwasser, combi-oven en koel-vriescombinatie. Het grote raam zorgt voor lekker veel daglicht. Door de goede breedte van het huis past hier ook perfect de eettafel waardoor je de woonkamer aan de achterzijde volledig als zithoek kunt gebruiken.
De woonkamer is tuingericht en beschikt over veel lichtinval door de grote raampartij met de openslaande deur aan de achterzijde. Op de vloer ligt een mooie houten vloer. In de woonkamer is een ruime trapkast met veel bergruimte.
Eerste verdieping:
De overloop geeft toegang tot 3 slaapkamers, berging en de badkamer. De vloeren zijn afgewerkt met keurige laminaat en de wanden en plafonds kennen een nette afwerking. De slaapkamers zijn voorzien van airconditioning. De modern uitgevoerde badkamer (2014) is voorzien van een inloopdouche, wastafelmeubel, 2e toilet en vloerverwarming.
De slaapkamer aan de voorzijde meet ca 10 m2. Aan de achterzijde van de woning liggen nog 2 slaapkamers van respectievelijk ca. 13m2 en 8m2, beide van prima formaat en zeer geschikt als slaap- of werkkamers. Op de overloop bevindt zich tenslotte nog de berging waar ook de wasmachine aansluiting en de cv-ketel is geïnstalleerd.
Tuin:
De gezellig en groen aangelegde tuin is op het zuidwesten georiënteerd. Direct grenzend aan de achtergevel bevindt zich een terras voor een grote buitentafel. Een meanderend paadje brengt je naar de achterzijde van de tuin, waar je nog een klein terrasje vindt en de achterom. Aan de voorzijde van de woning bevindt zich tenslotte nog een stenen berging met voldoende ruimte om fietsen en tuingereedschap te stallen.
Ligging:
De woning is heerlijk rustig gelegen aan klein straatje. In de directe omgeving vind je verschillende scholen en het winkelcentrum Emiclaer ligt op loopafstand. Met vijftien minuten fietsen sta je in de historische en gezellige binnenstad van Amersfoort. Voor een wandeling in het groen ga je naar het nabijgelegen Park Schothorst, met de grootste kindernatuurspeelplaats van Amersfoort. Wil je de stad uit? Vanaf station Schothorst is er een rechtstreekse trein naar Amsterdam Zuid en Duivendrecht en de uitvalswegen A1 en A28 zijn om de hoek.
Wat maakt Morielje 9 ‘je nieuwe thuis’:
– Goed onderhouden
– Energielabel A
– Hedendaagse keuken en badkamer
– Drie goede slaapkamers
– Zonnige tuin op het zuidwesten
– Slaapkamers met airconditioning
– 8 Zonnepanelen
– Ideale ligging ten opzichte van voorzieningen en groen
Schakel een NVM-aankoopmakelaar in. Een NVM-aankoopmakelaar komt op voor jouw belang en bespaart je tijd, geld en zorgen!

































