Dit is thuiskomen. Elsstraat 6 is een sfeervol en instapklaar huis, gelegen aan een rustig straatje in het karakteristieke Soesterkwartier. De woning heeft drie slaapkamers, een moderne keuken, een diepe tuin op het zuiden en een inpandige berging. Je bent hier van alle gemakken voorzien, want in 2022 heeft de eigenaar dit huis nog van boven tot beneden verbouwd en gemoderniseerd.
We nemen je graag mee…
Langs het groene voortuintje, via de originele ijzeren poort, kom je op de besloten binnenplaats. Hier is genoeg ruimte voor een zitje met veel privacy.
De hal is ruim en geeft toegang tot het toilet, de berging, de trap naar de eerste verdieping en de leefruimte beneden met keuken en woonkamer. De berging van ca. 6 m2 is zowel van buiten als vanuit de hal toegankelijk. Deze ruimte is geïsoleerd en voorzien van elektra en een wasmachine-aansluiting. Het toilet is volledig vernieuwd en voorzien van een hangend closet en fonteintje.
De open keuken ligt aan de voorzijde van het huis, van waaruit je op de voortuin en de straat kijkt. De moderne keuken met strakke blauwgrijze frontjes en notenhouten werkblad is voorzien van kokend waterkraan, koelkast, inductiekookplaat, afzuigkap, oven en vaatwasser.
De leefruimte is modern-retro afgewerkt met een combinatie van (leem)stuc, wandtegels, houten kozijnen en een parketvloer van duurzaam bamboe. De grote raampartij op het zuiden maakt van de woonkamer een lichte ruimte. Er is hier genoeg plek voor een eettafel en zithoek. De openslaande deuren geven toegang tot het terras en de tuin. De verdiepte kelderkast is te bereiken vanuit de woonkamer en een ideale plek vanwege de extra (voorraad)kastruimte. Hier bevindt zich ook de meterkast.
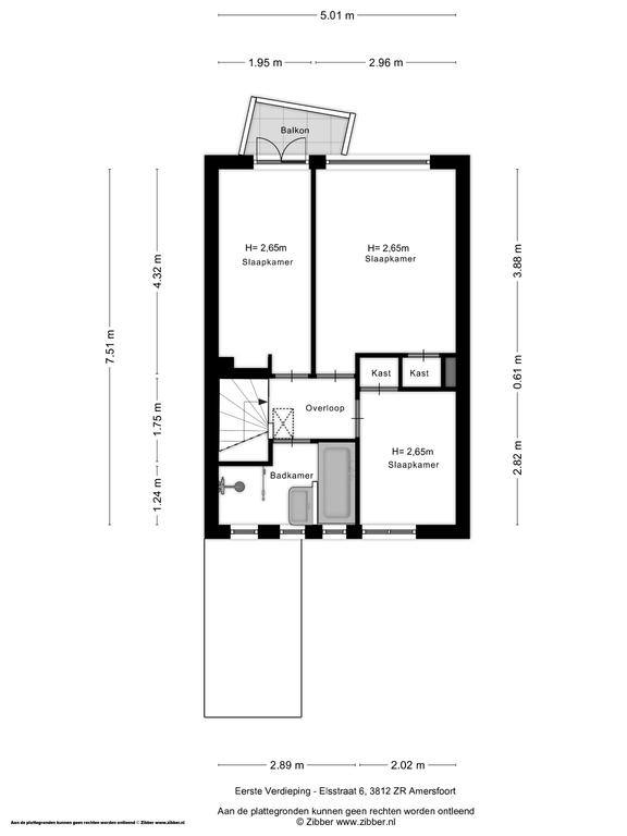
Eerste verdieping
De trap in de hal brengt je naar de eerste verdieping met daar de badkamer en drie slaapkamers. Alle kamers hebben originele paneeldeuren met fraai deurbeslag en recent gestuukte wanden. Twee van de drie slaapkamers zijn aan de achterzijde gelegen, waarvan één een klein balkon heeft. De kamers hebben hun originele vaste kasten behouden.
Aan de voorzijde bevindt zich de derde slaapkamer en tot slot de badkamer. Ook deze is in 2022 volledig vernieuwd en optimaal ingedeeld, waardoor je zowel een bad als een douche hebt. De elektrische vloerverwarming maakt deze stijlvolle badkamer nog comfortabeler.
Tweede verdieping
Via een vlizotrap op de overloop kom je op de tweede verdieping. Hier vind je een verrassend grote en netjes afgetimmerde bergzolder met de cv-opstelling en zonneboiler.
Buiten
Naast het tuintje en de besloten patio aan de voorzijde, heb je aan de achterzijde een dertien meter diepe tuin op het zuiden. De diverse borders en verschillende (fruit)bomen maken dit een ware groene oase. En wat dit buurtje uniek maakt, is de opzet van de straten; de achterzijde van het huis grenst niet aan andermans achtertuin, maar aan de voorzijde van de Lijsterbesstraat. Dit vergroot de afstand tot je achterburen en creëert veel privacy.
Ligging
Elsstraat 6 is ideaal voor wie net zoveel van natuur als van cultuur houdt. Dit huis ligt midden in het geliefde Soesterkwartier. Dit betekent dat je met een kleine 10 minuten fietsen zowel op de Hof in de historische binnenstad als op het centraal station bent. En wil je lekker wandelen of hardlopen in het bos, dan ben je met een paar minuten fietsen in natuurgebied Birkhoven en de Bokkeduinen. Scholen, supermarkten, speeltuinen en andere voorzieningen vind je allemaal op loop- of fietsafstand. Met de auto zit je zo op de A1 of A28.
Duurzaam
Ook aan het klimaat is gedacht in deze jaren ‘50 woning woning. Met HR++ glas, spouwmuurisolatie, vloerisolatie en zonnecollectoren op het dak ten behoeve van warm water, is het energieverbruik laag. Je kookt hier niet op gas (inductie) en de woning heeft op de begane grond moderne vloerverwarming die geschikt is voor een warmtepomp in de toekomst.
Wat maakt Elsstraat 6 jouw nieuwe thuis:
? Gerenoveerd in 2022
? Moderne afwerking
? Energielabel B
? Goed geïsoleerd
? Zonnecollectoren en zonneboiler
? Zeer energiezuinig
? Drie slaapkamers
? Geïsoleerde berging
? Diepe tuin op het zuiden
? Fijne ligging in de bomenbuurt in het Soesterkwartier
Kortom: een buitenkans van een huis dat je zo kunt betrekken!










































