Hier wil je wonen! Een fraaie jaren ’30 woning met veel ruimte, op een ruim perceel en dat gelegen dichtbij het centrum van Amersfoort, het Centraal Station en de bossen. Dit brede gezinshuis is ideaal centraal gelegen in het gewilde Soesterkwartier. Door de ligging in de buurt als ook de nabijheid van uitvalswegen is het huis perfect gelegen! De woning heeft een verrassend grote tuin van ca. 90 m2 heerlijk op het zuiden.
De woning behoeft vernieuwing maar daardoor is deze geheel naar eigen smaak aan te passen. Veel oude details zijn bewaard gebleven, zoals de paneeldeuren, glas-in-lood ramen, lambrisering, deurbeslag en de deurkozijnen. Een liefhebber kan deze woning naar een sfeervol en modern thuis brengen.
We nemen je graag mee…
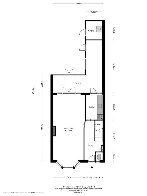
Entree & begane grond:
Via de charmante jaren ’30 voordeur met boven- en zijlichten in glas-in-lood kom je in de brede en ruime hal met toegang tot meterkast, toilet, kelder en trapopgang naar boven. De tegellambrisering uit de jaren ’30 is nog aanwezig. Het toilet is van goed formaat door de schuine opstelling van de deur en ook hier vind je de glas-in-lood ramen.
Vanuit de hal kom je in de woonkamer. Hier voel je meteen de plezierige breedte van het huis die zorgt voor een heerlijke leefruimte beneden. De fraaie erker geeft direct sfeer en maakt het een fijne plek om te zijn. De woonkamer is tuingericht. Via de originele openslaande deuren aan de achterzijde kom je in de aanbouw. De keuken is eenvoudig en loopt aan de achterzijde ook door in de aanbouw. Het huis leent zich uitstekend om de keuken te verbinden met de woonkamer bijvoorbeeld door het plaatsen van een kookeiland.
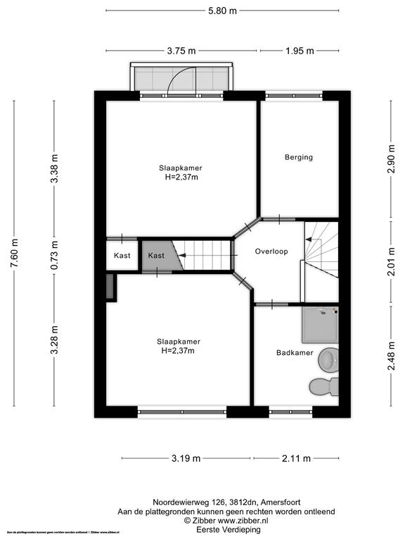
Eerste verdieping:
De trapopgang in de hal brengt je naar de eerste verdieping. Hier bevinden zich drie slaapkamers, de badkamer en de trapopgang naar zolder. Ook op deze verdieping vind je de originele paneeldeuren en kozijnlijsten. De breedte van de woning is ook hier merkbaar, alle drie de slaapkamers zijn van plezierig formaat (ca 13, 12 en 6 m2). De badkamer is eenvoudig en voorzien van douche en wastafel maar met een goede afmeting en voorzien van een groot raam voor natuurlijk licht.
Zolderetage:
De zolder biedt veel ruimte en is nu ingedeeld in twee aparte kamers. Met het plaatsen van dakkapellen creëer je hier nog meer ruimte met bijvoorbeeld twee extra slaapkamers en een tweede badkamer.
Ook vind je hier de cv-opstelling, deze is in 2021 nog vernieuwd.
Tuin:
De tuin met een diepte van ca. 18 meter ligt op het zuiden en heeft een achterom. Door de diepte van de tuin heb je volop mogelijkheden voor een aanbouw aan de achterzijde van het huis, diverse terrassen of een fraaie overkapping in de achtertuin.
Ligging:
De Noorderwierweg staat bekend om de veelheid aan winkels en zeer gunstige ligging ten opzichte van het Centraal Station en de historische binnenstad. Tel daarbij op de karakteristieken van een jaren ’30 wijk en het plaatje is compleet. Voor de momenten van ontspanning woon je 5 minuten fietsen van bos Birkhoven, het bosbad en natuurlijk het populaire dierenpark Amersfoort. De historische binnenstad van Amersfoort met al haar gezellige pleinen, restaurants en groot winkelaanbod ligt op 5 minuten fietsen.
Ontwikkelingen Noorderwierweg:
De Noordewierweg is een doorgaande weg in de wijk die in de nabije toekomst geheel vernieuwd gaat worden. De weg wordt in ere hersteld met karakteristieke bestrating, meer ruimte voor groen en een autoluw (30 km zone) straatbeeld. In de foto-presentatie zijn enkele impressies opgenomen (bron: gemeente Amersfoort). Medio 2024 wordt gestart met de aanleg.
Wat maakt Noordewierweg 126 je nieuwe thuis:
• Sfeervolle woonkamer met erker
• Verrassend breed huis
• Veel leefruimte en mogelijkheid tot 5 goede slaapkamers
• Mogelijkheid tot woonkeuken
• Stadse ligging en toch dicht bij het bos
• Diepe achtertuin op het zuiden
• Veel originele details in de woning
Koopovereenkomst:
Bij de verkoop wordt een standaard NVM koopovereenkomst gehanteerd. Bij de koopovereenkomst worden de volgende clausules opgenomen:
– Ouderdomsclausule
– Asbest- en loodclausule
Interesse in dit huis? Schakel direct uw eigen NVM aankoopmakelaar in. Uw NVM-aankoopmakelaar komt op voor uw belang en bespaart u tijd, geld en zorgen.















































