Hier wil je wonen, want wat een leuk huis is dit! De Houtmanstraat 18 is een uniek plekje op de perfecte locatie. De woning ligt namelijk op loopafstand van de leuke historische binnenstad, is goed onderhouden en heeft een heerlijke vrij gelegen tuin. In 2021 is de woning door de huidige bewoners van binnen gerenoveerd. Zo is de keuken en badkamer vernieuwd, zijn vloeren en wanden aangepakt, is de meterkast uitgebreid en zijn er zonnepanelen geplaatst. Met een energielabel B ben je qua verduurzaming klaar voor de toekomst. Zo beschikt het huis over isolatieglas, een nieuwe cv-ketel (2021) en liggen er zes zonnepanelen (2023) op het dak.
De woning is van alle gemakken voorzien en heeft naast een ruime woonkamer en keuken ook drie slaapkamers en een moderne badkamer. De grote berging op de vliering geeft een ongekende hoeveelheid aan bergruimte en dan hebben we de berging achter het huis niet genoemd. En dat met zo’n ligging. Kortom, deze woning wil je echt komen bekijken.
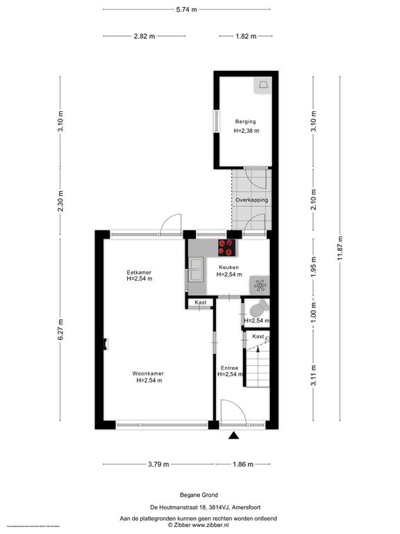
Welkom op De Houtmanstraat 18. We nemen je graag mee:
VOORTUIN & ENTREE
De voortuin is ruim en diep (ca.6 meter) groen aangelegd en de ideale plek voor een bankje om van de ochtendzon te kunnen genieten. De grootte van de voortuin biedt de mogelijkheid voor een (ondergrondse) fietsenberging.
De voorgevel van de woning heeft mooie originele details zoals het fraaie metselwerk onder het grote raam en het Franse balkon op de eerste verdieping gemaakt van smeedwerk.
Via de entree kom je in de hal. Hier vind je de meterkast, trapkast en het toilet. Het toilet is in neutrale lichtgrijze kleurstelling en voorzien van fonteintje.
WOON-/EETKAMER
Vanuit de hal kom je in de woonkamer. Met net afgewerkte wanden en een nette vloer kan je hier zo intrekken en met je eigen meubels gaan inrichten. Aan de voorzijde zit een groot raam wat plezierig veel licht naar binnen brengt en fijn zicht naar buiten. Aan de achterzijde vind je nog zo’n plezierig groot raam, hier is de perfecte plek voor een eethoek.
KEUKEN
De dichte keuken is ook aan de tuinkant gelegen, je komt hier via de hal. De keuken is netjes afgewerkt, in een lichtgroene kleurstelling met een houten werkblad. De keuken is voorzien van dubbele spoelbak, inductiekookplaat, oven en vaatwasser. Een leuk detail in de keuken is het originele ‘doorgeefluikje’ naar de eetkamer.
ACHTERTUIN
Door de loopdeur in de keuken kom je in de achtertuin. De achtertuin ligt op het noordwesten en heeft plezierig veel zon gedurende de dag. Op de diverse terrasjes kun je bijna op elk moment van de dag van de zon genieten. In de tuin bevindt zich een praktische berging. De tuin beschikt over een achterom.
EERSTE VERDIEPING
De trap in de hal brengt je naar de eerste verdieping. Hier vind je de badkamer en drie slaapkamers. Er ligt een laminaatvloer en wanden zijn glad afgewerkt.
SLAAPKAMERS
Alle drie de slaapkamers hebben een vaste kast. De eerste kamer aan de achterzijde meet ca. 5 m2. Op dit moment is deze kamer in gebruik als werkkamer maar deze is ook prima te gebruiken als babykamer. De tweede slaapkamer aan de achterzijde heeft een plezierige afmeting van ca. 11 m2. Door de grote raampartij komt veel licht naar binnen. Hier vind je ook de opgang naar de vliering. Aan de voorzijde is nog een tweede grote slaapkamer met een afmeting van ca. 10 m2 en is daarmee een volwaardig tweede slaapkamer. De kamer heeft een originele vaste kast en openslaande ramen met verlaagde vensterbank naar het Frans balkonnetje.
BADKAMER
De badkamer is in 2021 vernieuwd en voorzien van een inloopdouche en een wastafelmeubel. Er is optimaal gebruik gemaakt van de ruimte. Verder heeft de badkamer een raam voor prettig daglicht en goede ventilatie.
Tenslotte is via een vaste trap nog een verrassend grote bergzolder bereikbaar voor al je kampeerspullen, koffers en kerstspullen. Met behulp van een opbouw is hier een volwaardige woonlaag van te maken met extra slaapkamers.
LIGGING
De Houtmanstraat 18 ligt aan de rand van de gezellige binnenstad van Amersfoort, in de wijk Kruiskamp. De wijk Kruiskamp heeft zich in de afgelopen jaren flink ontwikkeld en gemoderniseerd en is daarmee ook een geliefde wijk geworden om te wonen. En dat snappen we! Met zicht op de OLV toren loop je zo de binnenstad in en met de variëteit aan winkels op het Neptunusplein heb je alle basisvoorzieningen binnen handbereik. Voor de kinderen in de buurt is de speeltuin De Kruiskamp een fenomeen. Deze speeltuin wordt gerund door de buurt zelf en kent een vereniging. Voor een beperkte jaarlijkse bijdrage ben je lid en kan je onbeperkt gebruik maken van de speeltuin. Door deze opzet blijft de speeltuin goed onderhouden en worden ook leuke activiteiten georganiseerd. Ook is hier een moestuin waar kinderen onder begeleiding kunnen helpen bij het zaaien, verzorgen en uiteindelijk het oogsten van de verschillende gewassen.
Wat maakt De Houtmanstraat 18 je nieuwe thuis:
– Perfecte ligging met alle voorzieningen op loopafstand
– Energielabel B
– Fijne tuin met achterom en berging
– Moderne badkamer en keuken (beide uit 2021)
– 6 Zonnepanelen (2023)
– Stadse ligging met 6 minuten fietsen naar de binnenstad
– Om de hoek bij de buurt speeltuin
Schakel een NVM-aankoopmakelaar in. Een NVM-aankoopmakelaar komt op voor jouw belang en bespaart je tijd, geld en zorgen!






















































