Hier wil je wonen! Wonen met uitzicht op het groen, midden in de stad!
Deze instapklare maisonnette is een unieke kans voor wie comfortabel en stijlvol wil wonen in het hart van Amersfoort. Direct grenzend aan het groene Zocherplantsoen en verdeeld over maar liefst drie woonlagen, biedt deze woning alles wat je zoekt: een moderne afwerking, vier slaapkamers, een zonnig balkon op het zuidoosten én een eigen garage in het souterrain.
De woning is recent voorzien van een nieuwe PVC-vloer, nieuwe verwarming én een nieuwe mechanische ventilatiebox, wat bijdraagt aan een energiezuinig en comfortabel binnenklimaat. De moderne zwarte keuken (2021) en luxe badkamer (2018) maken het plaatje compleet.
Gelegen op loopafstand van de historische binnenstad met gezellige terrassen, sfeervolle grachten en een breed winkelaanbod. Ook openbaar vervoer en uitvalswegen (A1/A28) zijn binnen handbereik.
Indeling
Eerste woonlaag
Via de trapopgang of lift bereik je de voordeur van het appartement. Binnenkomst in de hal met meterkast, bergkast met cv-opstelling, toiletruimte (2018) en trapopgang. De royale, lichte woonkamer is strak afgewerkt en voorzien van een nieuwe PVC-vloer. Vanuit de woonkamer heb je toegang tot het zonnige balkon met prachtig uitzicht over het Zocherplantsoen. De luxe keuken (2021) in matzwarte kleurstelling is uitgerust met hoogwaardige inbouwapparatuur: inductiekookplaat, afzuigkap, Quooker, vaatwasser, combi-oven en koel-/vriescombinatie.
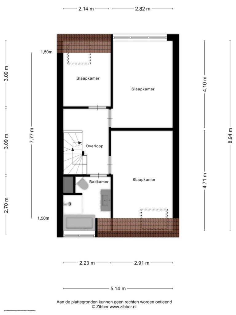
Tweede woonlaag
De overloop geeft toegang tot drie slaapkamers. De grootste slaapkamer aan de voorzijde meet ca. 13m2. Aan de achterkant van het appartement liggen twee kamers van 12m2 en 6m2, een mooie maat voor een werkkamer.
De badkamer (2018) is uitgevoerd in een lichte kleurstelling en voorzien van een ligbad, inloopdouche, wastafelmeubel en tweede toilet.
Derde woonlaag
Op de voorzolder vind je de aansluitingen voor wasmachine en droger. Daarnaast is voldoende bergruimte om je spullen op te slaan.
Op deze verdieping ligt de gezellige, ruime vierde slaapkamer, eveneens voorzien van een nette vloerafwerking. Door het dakraam heb je zicht op de toren van Amersfoort, wat een prachtig detail.
Garage
De woning beschikt over een eigen garage (ca. 6,80 x 2,54 m) met roldeur in de afgesloten parkeerkelder. Naast ruimte voor de auto is er voldoende plek voor opslag. Wat een luxe in de binnenstad.
Wat maakt Binnen de Veste 73 je nieuwe thuis?
– Een ruim woonoppervla van ca. 107 m²
– De eigen garage in de onderbouw
– Moderne en luxe keuken uit 2021
– Badkamer en toilet uit 2018
– Nieuwe PVC-vloer (2023)
– Vernieuwde radiatoren en MV-box
– Maar liefst 4 slaapkamers
Servicekosten: € 238,91 per maand inclusief garage
Wil je deze woning zelf ervaren? Neem contact met ons op voor een bezichtiging – we laten je dit bijzondere plekje in Amersfoort graag zien!
Schakel een NVM-aankoopmakelaar in. Een NVM-aankoopmakelaar komt op voor uw belang en bespaart u tijd, geld en zorgen!


























































