Hier wil je wonen! Op deze toplocatie in Amersfoort staat deze uitgebouwde en opgebouwde, zeer goed onderhouden hoekwoning aan een rustige en kindvriendelijke straat in de gewilde buurt in het Soesterkwartier.
De woning is met energielabel B energiezuinig mede door de zonnepanelen en de warmtepomp boiler. Daarnaast is de woning voorzien van een moderne keuken en badkamer, drie grote slaapkamers, een wasruimte en ook nog eens een goede tuin op het zuiden. Een ideaal en fijn huis voor starters en jonge gezinnen!
We nemen je graag mee:
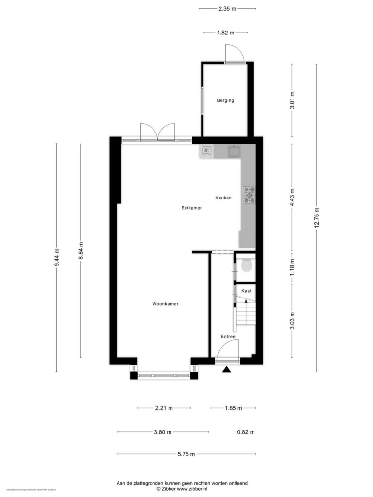
Voorzijde en Entree
De voorzijde van de woning valt meteen op door de grote raampartijen, klassieke voordeur en de leuke speelse erker over twee woonlagen. De voordeur brengt je naar de hal met toegang tot trapkast, toilet, leefruimte beneden en trapopgang naar boven. Het toilet is keurig, in moderne zwart/grijze kleurstelling en beschikt over hangend closet.
Keuken en Woonkamer
Vanuit de hal bereik je de leefruimte met open keuken en woonkamer. De woning is over de gehele breedte 2,5 meter uitgebouwd naar achteren, wat resulteert in een grote woonkeuken en woonkamer. Over de gehele begane grondvloer ligt een houtlook keramieke tegelvloer met vloerverwarming. De gehele woning is voorzien van glad gestuukte wanden en plafonds.
De keuken is van ruim formaat, heeft fraaie mat-witte kastfrontjes en een grijs werkblad. De keuken beschikt over diverse inbouwapparatuur waaronder 5-pits gasfornuis met wok-brander, wasemkap, combi-oven en vaatwasser. De vele kastjes bieden volop ruimte aan keukenspullen en voorraad.
Door de grote uitbouw is er direct bij de keuken ook een fijne plek voor een riante eettafel. De dubbele openslaande deuren naar de achtertuin maken het plaatje compleet.
De voormalige deur naar de woonkamer is dichtgezet waardoor de ruimte aan de voorzijde maximaal kan worden gebruikt en resulteert in een ruime woonkamer waar plek is voor een grote zithoek. De grote raampartij met brede vensterbank brengt veel licht naar binnen.
Eerste verdieping
De trap in de hal, keurig in houtlook bekleed, brengt je naar de eerste verdieping. Hier vind je twee grote slaapkamers, een grote badkamer en een aparte wasruimte. Ook hier zijn alle wanden glad gestuukt en op de vloer ligt een nette laminaatvloer.
Slaapkamers
De eerste slaapkamer bevindt zich aan de voorzijde en meet ca 11 m2. Ook hier vind je weer die leuke erker, ideaal voor een sfeervol zitplekje op de brede vensterbank. De tweede slaapkamer bevindt zich aan de achterzijde en is ook van groot formaat met ca. 12 m2.
Badkamer
De badkamer is van groot formaat (ca. 8 m2) en beschikt dan ook over zowel een groot ligbad, inloopdouche, wastafelmeubel en toilet. Ook hier is de kleurstelling weer neutraal door het gebruik van een grijze tegel en wit sanitair. De vloerverwarming zorgt voor het comfort. Plezierig zijn de twee grote ramen. Deze zorgen voor fijn veel daglicht en natuurlijke ventilatie.
Tweede verdieping
In 2012 is er een nokverhoging geplaatst op de woning waardoor er een grote slaapkamer met voorzolder is gerealiseerd. De voorzolder is ruim en de aanwezige knieschotten bieden veel handige opbergruimte. De slaapkamer is van goed formaat met ca. 15 m2 en is heerlijk licht door de grote raampartijen aan weerszijden. De airco verzorgt koelte in de zomer en warmte in de winter, wat een luxe! Ook hier is er weer veel opbergruimte achter de knieschotten.
Tuin
De achtertuin is onderhoudsvrij en ligt op het zuiden waar je heerlijk van de zon kunt genieten. Vanuit de tuin kom je in de stenen berging, de ideale plek voor fietsen, tuinspullen en gereedschap. De tuin is verder voorzien van een achterom.
Ligging
De Lambert van Noortstraat ligt op een perfecte locatie voor iedereen die op loopafstand wil wonen van de sfeervolle binnenstad, het levendige Eemplein of het Centraal Station. Met de fiets ben je in 10 minuten bij het uitgestrekte natuur-en bosgebied Birkhoven met het zwembad en de dierentuin. En met de auto zit je in no-time op de snelwegen rond Amersfoort.
Wat maakt Lambert van Noortstraat 27 je nieuwe thuis:
– Ruime, instapklare gezinswoning;
– Ideale ligging ten opzichte van station, stadshart en uitvalswegen;
– Drie goede slaapkamers;
– Mooie badkamer en goede keuken;
– Energielabel B
– Airco en zonnepanelen;
– Gelegen in het geliefde Soesterkwartier.
Schakel?een NVM-aankoopmakelaar in. Een NVM-aankoopmakelaar komt op voor jouw belang en bespaart je tijd, geld en zorgen!















































