Hier wil je wonen! Wat een geluk dat er weer een sfeervolle jaren ’30 twee-onder-een-kapwoning op de markt is, gelegen in het geliefde Leusderkwartier. De woning ademt de charme van weleer met vele originele details, zoals glas-in-loodramen, paneeldeuren en een granitovloer. Tegelijkertijd is het huis keurig onderhouden en aangepast aan de moderne tijd met onder andere zonnepanelen en een (uitgebouwde) moderne keuken en badkamer (2022). Het perceel biedt volop mogelijkheden met een diepe achtertuin, een fijne zijtuin én goede voortuin. Bovendien ligt de woning perfect ten opzichte van natuur en alle dagelijkse voorzieningen waardoor het een ideaal en veelzijdig gezinshuis is.
We nemen je graag mee:
Wat meteen opvalt als je voor het huis staat, is de mooie groene voortuin van fijn formaat. Bij de erker vind je het ideale plekje voor een bankje, waar je kunt genieten van de middag- en avondzon terwijl je kinderen lekker op straat spelen. De voorgevel straalt de karakteristieke jaren ’30 charme uit. De grote erker, ruime overstekken en de mooie klassieke voordeur maken het plaatje compleet en geven een warm welkom.
Entree
Bij binnenkomst in de hal ervaar je de charme die deze woningen zo populair maakt. De granito vloer met bies, de klassieke tegellambrisering met garderobe, het fraaie glas-in-loodraam, de paneeldeuren en het hoge plafond zorgen samen voor een sfeervol geheel. Verder vind je in de hal een vernieuwde meterkast, een toilet met fonteintje en een praktische bergkast onder de trap.
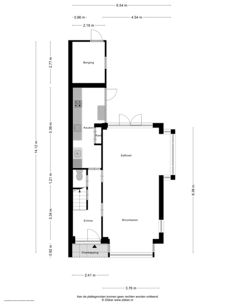
Woonkamer en eetkamer
Vanuit de hal betreed je de ruime leefruimte op de begane grond waarin de zitkamer aan de voorzijde en eetkamer aan de achterzijde naadloos in elkaar overlopen. De massief houten vloer geeft de gehele ruimte een warme en karaktervolle uitstraling.
Aan de voorzijde bevindt zich de charmante zitkamer met een diepe erker en een groot zijraam, wat zorgt voor optimale lichtinval. De marmeren vensterbanken maken het geheel sfeervol af.
Het achtergedeelte van de voormalige kamer en suite is ideaal voor een grote eettafel. Ook hier zorgt een royale erker aan de zijgevel voor extra ruimte, sfeer en veel daglicht. Via de openslaande deuren aan de achtergevel is een directe verbinding met het terras en de tuin waardoor binnen en buiten moeiteloos in elkaar overlopen.
Keuken
De keuken is toegankelijk vanuit de hal en is door de uitbouw aan de achterzijde van de woning van een prettig formaat met een oppervlakte van ca. 12 m². De keuken heeft een rechte opstelling en is modern uitgerust met een koel-/vriescombinatie, oven, vaatwasser en 5-pits gaskookplaat. De strakke, greeploze witte frontjes in combinatie met het donkere werkblad zorgen voor een tijdloze uitstraling. Een mooi detail is dat de keuken nog beschikt over de originele jaren ’30-kast die parallel loopt aan de moderne keukenkastjes en zo een mooi contrast vormt tussen historische charme en hedendaags comfort. De ruimte is bovendien afgewerkt met een karakteristieke granito vloer die perfect past bij de stijl van de woning. Vanuit de keuken is er via een loopdeur direct toegang tot de tuin.
Eerste verdieping
De trap in de hal brengt je naar de eerste verdieping waar zich drie sfeervolle slaapkamers en de badkamer bevinden. De grootste slaapkamer ligt aan de achterzijde en beschikt over een vaste kast, een balkon en een prettig zijraam waardoor de kamer heerlijk licht aanvoelt. De tweede slaapkamer aan de achterzijde leent zich uitstekend als baby- of kinderkamer. De derde -wederom ruime- slaapkamer aan de voorzijde biedt uitzicht op het vriendelijke straatje en heeft eveneens een zijraam dat zorgt voor een fijne, lichte sfeer.
De keurige badkamer (2022) is van een goed formaat en voorzien van een wastafelmeubel, toilet en ruime inloopdouche. Het raam laat natuurlijk daglicht binnen en zorgt voor een aangename ventilatie. De moderne afwerking maakt het geheel compleet en zorgt voor een verzorgde uitstraling.
Tweede verdieping
Via een vaste trap bereik je de tweede verdieping die bestaat uit een ruime voorzolder en een vierde slaapkamer. De voorzolder is licht en praktisch ingericht met aan weerszijden Velux-ramen die zorgen voor prettig veel daglicht. Hier bevinden zich de CV-ketel en de opstelling voor wasmachine en droger en achter de knieschotten is veel handige bergruimte aanwezig. De sfeervolle vierde slaapkamer is door de twee dakkapellen aan weerszijden eveneens heerlijk licht en ruim. De open nok geeft de kamer bovendien een extra ruimtelijk gevoel en veel karakter.
Buiten & Berging
In de diepe achtertuin met een gunstige zuidoostelijke ligging zorgt volwassen groen voor een prettige, natuurlijke schaduw. Hier kun je in de ochtend, middag èn in de avond heerlijk van de zon genieten. Achter in de tuin is een ideale plek voor een grote overkapping of buitenkamer, perfect om lange zomerdagen buiten door te brengen. De zijtuin biedt nog veel ruimte en is dankzij de maximale zonligging op het zuiden een heerlijke plek om te zitten. De voortuin is ideaal voor een bankje, waar je in de avondzon kunt zitten terwijl je kinderen veilig op straat spelen.
In de achtertuin bevindt zich tevens een berging die via een poort aan de zijkant van het perceel gemakkelijk met de fiets bereikbaar is.
Ligging
De Celsiusstraat is een fijne en kindvriendelijke straat in de wijk Leusderkwartier. Hier voel je optimaal de sfeer van de jaren ‘30 wijk en ervaar je de perfecte ligging waar de jaren ’30 wijken zo bekend om staan. Loop je de straat uit dan sta je meteen in de bossen van Nimmerdor en Den Treek. Tegelijkertijd ben je met een paar minuten lopen op de Leusderweg, de gezellige winkelstraat van Amersfoort Zuid. Deze straat heeft alles wat je nodig hebt; van meerdere supermarkten tot speciaalzaken waaronder bakkers, een kaas speciaalzaak, bloemisten, kapper etcetera.
Wil je naar het centrum van Amersfoort? Met zes minuten op de fiets ben je bij de binnenstad en loop je zo het oude centrum in. Dit is met recht een toplocatie te noemen!
Wat maakt Celsiusstraat 70 Je nieuwe thuis?
– Prettige hoekligging in fijne straat
– Veel originele jaren ’30 details
– Heerlijke ruime uitgebouwde keuken
– Fijne tuin rondom het huis
– 4 goede slaapkamers
– Moderne badkamer uit 2022
– 8 zonnepanelen
– Geliefde ligging in het Leusderkwartier
Enthousiast geworden? Dat snappen we! Bel ons voor een bezichtiging, we laten de woning graag zien.
Schakel?een NVM-aankoopmakelaar in. Een NVM-aankoopmakelaar komt op voor jouw belang en bespaart je tijd, geld en zorgen!



























































