Hier wil je wonen! In de geliefde Indische Buurt aan de zuidkant van Amersfoort vind je deze ruime, karakteristieke half-vrijstaande jaren’30-woning met maar liefst 182 m2 woonoppervlak. Met zes slaapkamers, een royale woonkeuken, een fraaie originele uitbouw en een grote, zonnige tuin op het zuidwesten, biedt dit huis volop ruimte voor een groot gezin. Het ruime perceel van 588 m² met oprit en vrijstaande garage biedt tenslotte nog volop praktische mogelijkheden en maakt het plaatje compleet.
De woning, gebouwd in de jaren ’30, valt direct op door haar authentieke geveldetails en karakteristieke dak overstekken. Binnen zijn nog veel originele elementen aanwezig, zoals glas-in-loodramen, en-suite deuren, paneeldeuren, klassieke kozijnlijsten en origineel deurbeslag.
We nemen je graag mee:
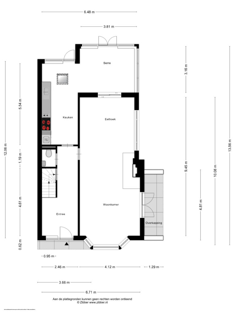
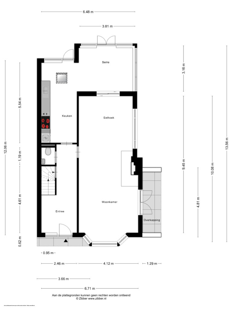
Entree
Via de entree aan de voorzijde betreed je de ruime hal die direct de sfeer van een karakteristieke jaren ’30-woning uitstraalt. De klassieke voordeur met zijvensters zorgt voor een mooie lichtinval, waardoor de ruimte een open en uitnodigende uitstraling heeft. De bijzonder brede hal biedt toegang tot zowel de keuken als de woonkamer en beschikt over een toiletruimte, toegang tot de kelder en een stijlvolle trapopgang naar de eerste verdieping.
Woonkamer
Vanuit de hal stap je de ruime, doorlopende leefruimte op de begane grond binnen. Hier vloeien de zitkamer, eetkamer en serre aan de achterzijde moeiteloos in elkaar over. De parketvloer en het
originele balkenplafond geven de ruimte een warme en karaktervolle uitstraling.
Aan de voorzijde ligt de charmante zitkamer met een diepe erker. Granieten vensterbanken en glas-in-loodramen zorgen voor een sfeervolle afwerking terwijl de openslaande deuren naar het terras aan de zijgevel een directe verbinding met de tuin creëren. Met ruim vier meter breed is er volop ruimte voor een zithoek.
Tussen de zitkamer en het middengedeelte van de leefruimte staat een grote schouw met open haard die op natuurlijke wijze de zithoek van de eethoek afbakent en direct sfeer toevoegt.
Eetkamer
Het middengedeelte biedt ruimte voor een grote eettafel of een extra zithoek. De grote raampartij aan de zijgevel zorgt weer voor veel lichtinval waarbij ook hier de kenmerkende glas-in-looddetails niet ontbreken.
Serre
Aan de achterzijde bevindt zich de originele uitbouw van de woning die door de authentieke en-suite deuren met glas-in-lood en bovenlicht verbonden is met de rest van de leefruimte. De raampartijen rondom en de openslaande deuren naar de tuin maken dit tot een lichte, sfeervolle plek waar binnen en buiten naadloos in elkaar overlopen. Een prachtige plek om een eetkamer te realiseren.
Keuken
De halfopen keuken is aan de achterzijde uitgebouwd waardoor een ruime opzet van ca. 14 m² ontstaat direct verbonden met de originele uitbouw aan de achterzijde. Voldoende plek om een knusse eethoek te plaatsen. De keuken is in de lengte opgesteld en voorzien van diverse inbouwapparatuur waaronder een koelkast, vaatwasser, oven en 6-pits kookplaat. De dakkoepel laat extra veel daglicht binnenvallen terwijl een loopdeur naar de tuin zorgt voor een directe verbinding met buiten.
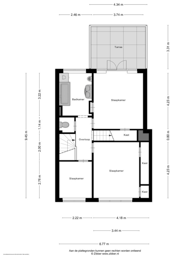
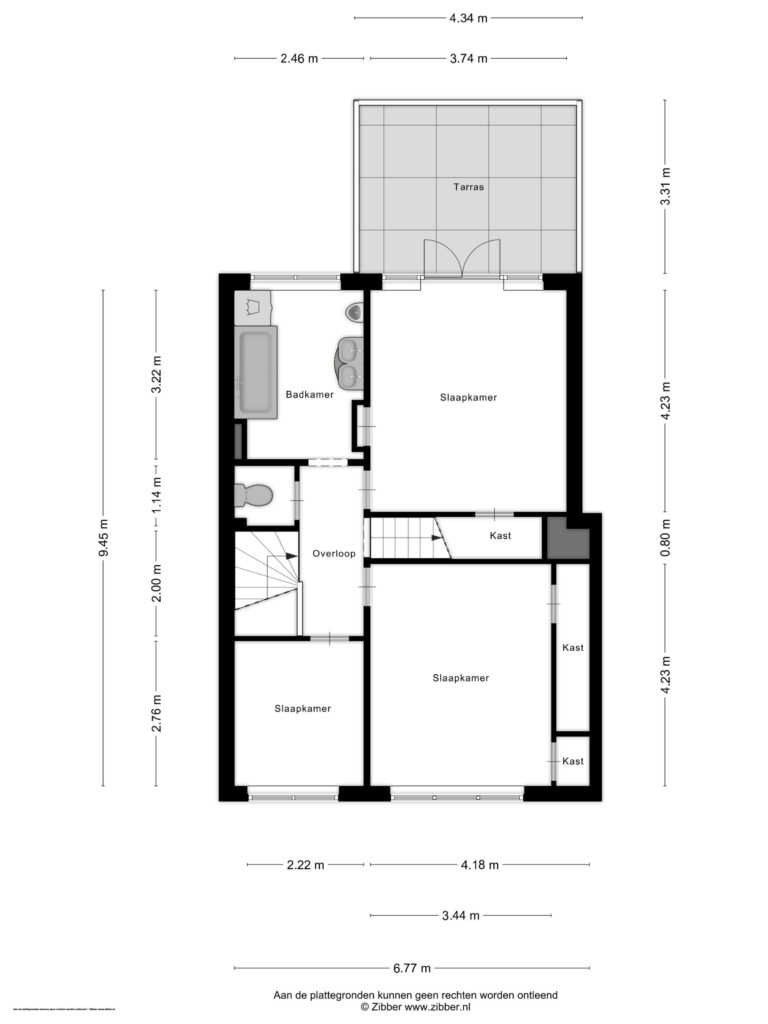
Eerste verdieping
De trap in de hal leidt naar de overloop op de eerste verdieping die toegang biedt tot drie slaapkamers en de badkamer. De badkamer is ruim van opzet en biedt plek voor een douche, ligbad en dubbele wastafel, terwijl het toilet separaat is.
Aan de voorzijde bevinden zich twee slaapkamers. De eerste van ca. 6 m² is ideaal als babykamer of werkkamer. De tweede slaapkamer aan de voorzijde is ruim met ca. 18 m² oppervlak en beschikt over een grote vaste kastenwand. Beide kamers worden verfraaid door glas-in-loodramen.
Aan de achterzijde ligt de derde slaapkamer eveneens ruim met ca. 18 m² oppervlak. Deze kamer heeft openslaande deuren naar het grote dakterras van ca. 12 m² dat een aangenaam groen uitzicht biedt over de tuin.
Tweede verdieping
Een vaste trap leidt naar de tweede verdieping waar een ruime overloop toegang biedt tot drie slaapkamers en een bergruimte. De slaapkamers zijn allemaal voorzien van een eigen wastafel. Op deze verdieping is genoeg ruimte om een tweede badkamer te realiseren, ideaal voor kinderen of logees. Vanuit de overloop geeft een vlizotrap toegang tot de vliering die extra bergruimte biedt en de veelzijdigheid van deze verdieping compleet maakt.
Tuin & Garage
De achtertuin, gelegen op het zuidwesten, is zeer diep en biedt daarmee veel mogelijkheden. Direct aan de achtergevel ligt een groot terras, daarnaast is er volop ruimte voor een extra terras, speeltoestellen of bijvoorbeeld een klein hockeyveldje. Achter in de tuin zorgen veel grote, oude bomen voor extra privacy en een groene, natuurlijke sfeer. Hier vind je een vrijstaande garage van ca. 24 m², die groot genoeg is om een auto te parkeren en daarnaast nog voldoende ruimte biedt voor een werkbank of andere hobby- en opbergmogelijkheden. Aan de achterzijde van de garage grenst bovendien nog een aparte berging. Aan de zijkant van het huis is tenslotte de stookruimte toegankelijk die ca. 11 m² groot is en extra bergruimte biedt.
De omgeving
De ligging van deze woning is rustig en groen en toch dichtbij alles wat Amersfoort te bieden heeft. Op korte afstand liggen de bossen van Klein Zwitserland, Nimmerdor en het uitgestrekte natuurgebied Den Treek – ideaal voor wandelingen of fietstochten. Voor de dagelijkse boodschappen en gezelligheid is de Leusderweg met een uitgebreid winkelaanbod dichtbij. Het historische centrum van Amersfoort, het centraal station en diverse uitvalswegen zijn binnen enkele minuten bereikbaar. Bovendien liggen scholen, sportvoorzieningen en speelgelegenheden in de directe omgeving, waardoor deze locatie optimaal aansluit bij het gezinsleven.
Wat maakt Balistraat 31 ‘je nieuwe thuis’:
– Karakteristieke half-vrijstaande jaren ’30-woning met 181 m² woonoppervlak en vele originele details;
– Sfeervolle leefruimte met erker, open haard en serre;
– Maar liefst 6 slaapkamers;
– Vrijstaande grote garage van 24 m2
– Zeer diepe en zonnige tuin op het zuidwesten;
– Gewilde ligging in de Indische Buurt in Amersfoort Zuid;





































































